The Power Coffee: Pioneering Innovative Coffee Shop Design in Đà Nẵng
The Power Coffee in Đà Nẵng redefines coffee shop design with its iconic pyramid facade, open spaces, and integrated greenery.
Nestled in the bustling streets of Đà Nẵng, Vietnam, opposite the City Theater, The Power Coffee stands as a beacon of innovative coffee shop design. Designed by KCONCEPT, this 114 m² project completed in 2023, has become a hallmark of creativity and brand identity in the realm of coffee shop interiors.



The Design Philosophy
At the heart of The Power Coffee's design lies the intention to merge the external environment with the interior space, creating a seamless transition that embraces Đà Nẵng's unique weather patterns. The strategic use of open spaces combined with green areas across the floors blurs the boundaries between the indoors and outdoors. The flexibility of door systems allows for natural ventilation on summer days and cozy enclosures when the winds pick up.





A Signature Facade
The facade of The Power Coffee is instantly recognizable by its pyramid structures, a distinctive DNA element across its three Đà Nẵng branches. This iconic feature was not only retained but also enhanced through a meticulous selection of contrasting materials and modular designs. The result is a unified visual identity that stands out, maintaining brand consistency while offering an open view of the interior across all floors.







Spatial Dynamics
The coffee shop's floor plan, originating from four townhouses with varying facade levels, presented a challenge in achieving a coherent design. The solution was an iron frame system adorned with alternating pyramids, reminiscent of a traditional Vietnamese children's game, which envelops the structure, providing a dynamic yet unified exterior.






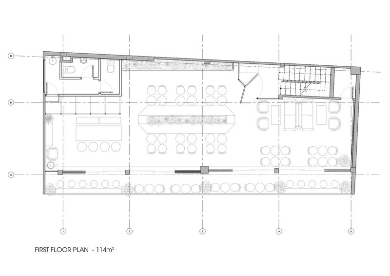
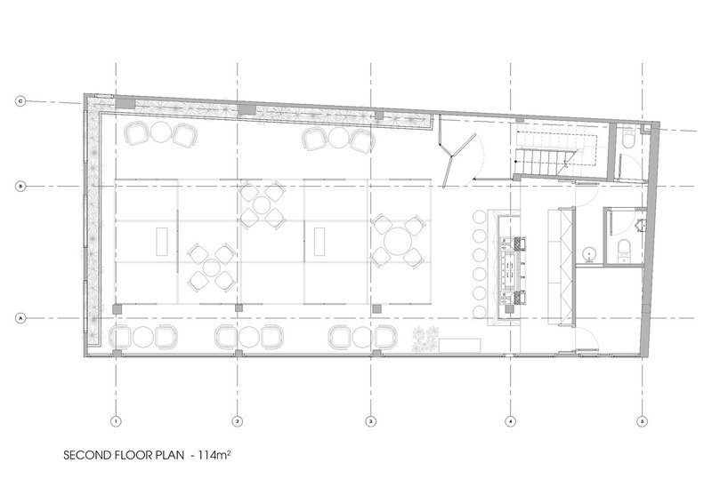
Interior Layout
With a focus on maximizing the elongated yet narrow space, the interior is thoughtfully arranged into three layers on each floor, interspersed with clusters of greenery to enhance depth and visual interest. The ground floor features a prominent counter system and a ceiling motif echoing the facade's pyramid design, reinforcing brand identity from both near and afar.




Multipurpose Spaces
Ascending to the second floor, the commitment to open and adaptable spaces continues, with sliding doors and layered seating arrangements surrounded by greenery. The third floor transforms into a versatile area with a movable partition system, catering to various events. The rooftop garden, divided into intimate clusters, offers a serene escape for customers seeking tranquility or a quiet workspace.





The Power Coffee by KCONCEPT is more than just a coffee shop; it's a testament to innovative coffee shop design, blending brand identity with architectural ingenuity. This project sets a new standard for coffee shop aesthetics in Đà Nẵng, offering a unique environment where customers can enjoy the beauty of design and the pleasure of coffee in perfect harmony.



Popular Articles
Popular articles from the community
A Contemporary Take on Iranian Residential Architecture
A modern interior design in Mashhad that reinterprets brick, light, and spatial flow to create a warm, contemporary residential architecture.
An Miên Lumière Cafe by xưởng xép, Ho Chi Minh City, Vietnam
An industrial-inspired café where layered steel and warm light create a dynamic, immersive environment shaped by reflection, depth, and perception.
Inverted Architecture Installation by Studio Link-Arc: Exploring the Intersection of Architecture and Living Organisms
Inverted Architecture Installation by Studio Link-Arc blends mycelium, sustainability, inverted design, ecological cycles, and urban adaptive architecture in Shenzhen.
On the Brooks House by Monsoon Collective – A Contemporary Kerala Home Rooted in Tradition
Kerala home blending tradition and modernity with water-inspired design, brick architecture, courtyard planning, and sustainable rainwater harvesting strategies.
Similar Reads
You might also enjoy these articles
Top 15 Architecture Competitions to Enter in 2026
From student-friendly idea competitions to prestigious international awards, here are the best architecture competitions open for entries in 2026. Updated regularly.
DIY & Engineering in Computational Design : Enter the BeeGraphy Design Awards
Showcase Your Creativity with Computational Design and Open Source Projects

Innovative Design Solutions: Award-Winning Projects from Recent Architecture Competitions
Exploring award-winning architectural projects shaping the future of design, sustainability, and community.
Explore Architecture Competitions
Discover active competitions in this discipline
The International Standard for Design Portfolios
The Global Benchmark for Architecture Dissertation Awards
The Global Benchmark for Graduation Excellence
Challenge to reimagine the Iron Throne
Comments (0)
Please login or sign up to add comments
No comments yet. Be the first to comment!