Atelier d'Architecture Gardera-Pastre Converts an Industrial Shell into a Third Space for Creatives
A polycarbonate-clad renovation in France turns raw industrial bones into a communal workspace that glows from within at dusk.
The premise is deceptively simple: take an existing industrial building, strip it to its structural skeleton, and insert a new creative ecosystem inside. Atelier d'Architecture Gardera-Pastre has done exactly that with Third Space for Creatives, a renovation that treats the host building not as a constraint but as a ready-made framework. The exposed steel trusses and gabled roof profile remain legible, while new programs, workshops, galleries, and communal areas nest within like organs inside a ribcage.
What makes this project worth studying is its refusal to prettify. The corrugated metal, the visible ductwork, the raw concrete ceilings: none of it is hidden. Instead, a single chromatic gesture, a saturated yellow applied to staircases, signage, cushions, and sculptural installations, threads through the building and gives it identity without decoration. The translucent polycarbonate envelope turns the entire structure into a lantern at dusk, broadcasting activity to the street. It is industrial architecture made hospitable through discipline rather than disguise.
A Lantern at Dusk


The long facade reads as a single luminous bar when lit from within. Polycarbonate panels diffuse interior light evenly, erasing the distinction between wall and window and turning the building's nighttime presence into a kind of public signaling. The exposed steel canopy frame at the entrance acts as a threshold between the raw street and the tempered interior, framing views without enclosing them.
By day, the translucent skin admits a soft, diffused glow that reduces the need for artificial lighting. It is an efficient choice for a creative workspace: even light, no glare, and a constant visual connection to the passage of time outdoors. The strategy also sidesteps the cost and fussiness of curtain wall glazing, keeping the project's budget and aesthetic aligned.
Yellow as a Wayfinding System



The yellow staircase in the double-height lobby is more than a circulation element. It is the building's anchor, a piece of infrastructure that doubles as visual orientation. You see it the moment you enter, and its color recurs on bridge railings, overhead signage, and the sculptural installation in the main hall. Gardera-Pastre uses a single hue the way a graphic designer uses a brand color: sparingly enough to be legible, consistently enough to be memorable.
On the upper level, mesh-railed bridges span the full width of the gabled volume, turning circulation into spectacle. Walking across one of these bridges means being seen from below and seeing the entire hall in return. The steel trusses overhead and the glazed gable roof complete the picture: an industrial cathedral where the congregation moves through the nave on steel catwalks.
Programmatic Variety Under One Roof



The genius of a third space is that it resists monoculture. This building hosts gallery exhibitions, communal dining, and hands-on workshops, all within a single envelope. The gallery space, with its illuminated screens on metal stands, feels contemporary and minimal. A few rooms away, the concrete-walled workshop where people gather around tables and rugs at dusk has the casual warmth of a community center. Neither space compromises the other because the raw structural shell absorbs their differences.
The white-walled lobby with its concrete ceiling beam and glazed doors acts as a hinge, connecting the more public exhibition zones to the semi-private dining and working areas beyond. Transparency between rooms is deliberate: you can always glimpse another program happening nearby, which encourages the cross-pollination a creative community needs.
Material Honesty and Acoustic Care


For all the project's celebration of rawness, there are moments of genuine refinement. The timber-lined corridor with perforated acoustic panels and a built-in bench with yellow cushions is the building's quietest room, and arguably its most considered. Where corrugated metal and exposed trusses define the communal volumes, timber and fabric define the spaces meant for rest, conversation, or focused work. The contrast is not accidental.
Exposed ductwork and structural steel remain visible throughout, but the architects clearly calibrate where acoustic comfort matters. The perforated panels absorb sound in the corridor; the double-height halls, by contrast, are left reverberant and alive. Different programs get different acoustic personalities, and the material palette shifts accordingly.
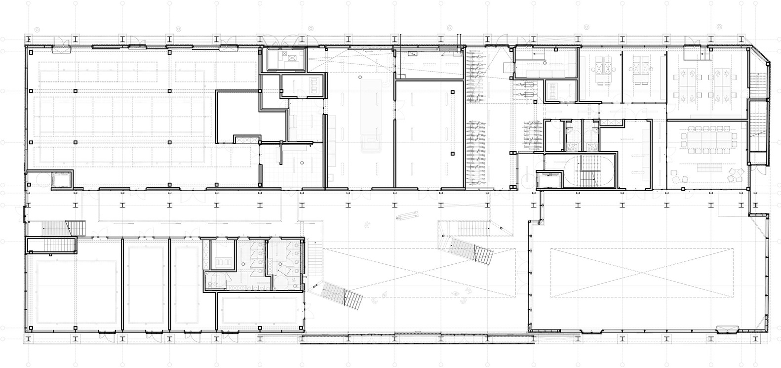
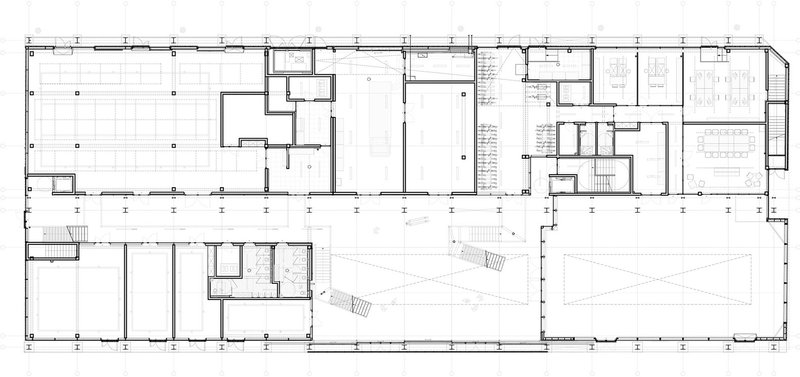
Plans and Drawings





The cutaway and exploded axonometric drawings reveal the core strategy: three parallel gable-roofed volumes, each with its own structural logic, unified by a shared longitudinal circulation spine. The section drawing shows how a central staircase connects multilevel interior spaces, creating vertical relationships between the ground-floor workshops and the upper galleries and bridges. The floor plan confirms a simple organizational principle: rooms arranged along a central corridor, like a village street lined with different shopfronts.
The elevation drawing makes visible what the translucent polycarbonate obscures in photographs: the twin gabled profiles and the vertical cladding rhythm that gives the facade its texture. Together, these drawings tell the story of a renovation that works within existing structural boundaries while inserting a layered, multi-level program that the original building never anticipated.
Why This Project Matters
Adaptive reuse has become the default position in contemporary architecture, but too many conversions fall into one of two traps: either they obliterate the host building in pursuit of a polished interior, or they fetishize decay to the point of impracticality. Gardera-Pastre avoids both. The industrial skeleton is preserved and celebrated, but it is not treated as sacred. New elements, the yellow staircases, the timber corridors, the polycarbonate envelope, are assertive additions that improve performance without pretending to have always been there.
More importantly, the project demonstrates that a creative community space does not require a trophy building. It requires a clear structural logic, a varied program, and enough material generosity to make people want to stay. The glowing polycarbonate facade is a statement, certainly, but the real argument is inside: a building that hosts exhibitions, workshops, meals, and quiet contemplation under one economical roof. That is a third space worth the name.
Third Space for Creatives by Atelier d'Architecture Gardera-Pastre. Photography by Stéphane Chalmeau.
About the Studio
Share Your Own Work on uni.xyz
If projects like this are the kind of work you want to make, uni.xyz is a place to publish your own, find collaborators, and enter design competitions.
Popular Articles
Popular articles from the community
LABarq Builds an Entire House in Querétaro from a Single Custom Concrete Block
Casa Capuchinas uses one sand-colored block as structure, finish, and sunscreen across 477 square meters of suburban Mexico.
Atelier LAI Scatters a Timber Resort Across a Terraced Anhui Valley
Nanshan Junning Resort uses wood joinery and topographic sensitivity to settle 6,700 square meters into a ten-meter slope near Hefei.
Prokop Hartl Turns a 1930s Prague Corner Apartment into a Lesson in Structural Honesty
A 115 m² renovation on the Vltava River celebrates exposed concrete, restored parquet, and a mirrored column as its centerpiece.
20 Most Popular Furniture Design Projects of 2025
Modular street systems, parametric benches, and insect hotels: the furniture design projects that captivated architects on uni.xyz in 2025.
Similar Reads
You might also enjoy these articles
Olio Towers: A Mid-Rise for Performers That Fuses Housing, Rehearsal, and Stage
Located blocks from Houston's Theater District, this modular tower stacks living units around a central performance atrium.
Oasis: Modular Green Housing Carved into Dhaka's Urban Fabric
A shortlisted Plugin Housing entry reclaims unauthorized settlements in Dhaka with stepped concrete volumes, green roofs, and ventilation-driven design.
Black Hole: A Floating Megastructure for the Post-Physical Era
Emiliano Mazzarotto envisions a spherical, self-scaling arena where e-sports, digital hotels, and holographic stadiums replace traditional public space.
Compact & Sustainable Living in Piraeus: A Four-Level Family Home Built Around Light and Air
A narrow townhouse in one of Greece's densest port cities uses a central atrium and passive strategies to house three generations under one roof.
Explore Architecture Competitions
Discover active competitions in this discipline
The International Standard for Design Portfolios
The Global Benchmark for Architecture Dissertation Awards
The Global Benchmark for Graduation Excellence
Challenge to reimagine the Iron Throne
Comments (0)
Please login or sign up to add comments
No comments yet. Be the first to comment!