Tracing by ambientdesigns – Redefining Retail and Gallery Interiors in Shibuya, Tokyo
Tracing by ambientdesigns in Shibuya blends store, gallery, and studio, inspired by kiosk design, merging retail, culture, and creativity.
Located in the vibrant heart of Shibuya City, Tokyo, Tracing by ambientdesigns is a multi-functional interior project that blends retail, exhibition, and creative studio spaces into one fluid architectural experience. Completed in 2020, this 113 m² interior design project reinterprets the concept of a kiosk and transforms it into a unique cultural hub for pop art, fashion, and commercial creativity.

Concept and Inspiration
The client’s vision for the project centered around the “kiosk” — a familiar element of Japanese streets and train stations. Ambientdesigns translated this everyday reference into a sophisticated interior language, creating a space that feels approachable yet innovative. The design concept of “tracing” became central to the project: the architects studied and replicated the scale, proportions, and atmosphere of kiosks, adapting them into a modern commercial environment.

This approach went beyond spatial layout, influencing visual merchandising (VMD) and signage design. Products of similar scale to those typically found in kiosks were displayed in the store, enhancing a sense of familiarity. Even the “No Trespassing” sign separating the store from the gallery was reimagined as an artful detail, crafted from transparent natural stone and vinyl rope in reference to Tomeishi — traditional stones used in Japanese gardens.


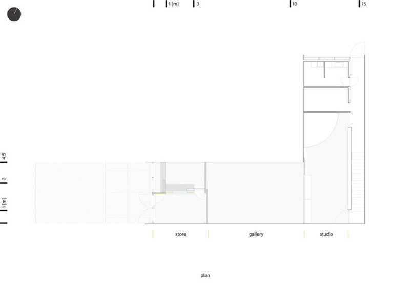
Spatial Organization
The floor plan of Tracing was carefully designed to maximize efficiency within the deep, street-level site on Omotesando. The spatial sequence is arranged as follows:
- Store – welcoming the public with kiosk-inspired displays and retail goods.
- Gallery – hosting exhibitions of pop art, fashion, and commercial works.
- Studios – private zones at the rear for filming, recording, and creative production.

This zoning not only reflects the site’s urban character but also creates a layered journey from public to private spaces.
Methodical Finishing
One of the project’s most notable design philosophies is the idea of “methodical finishing.” In many small-scale commercial interiors, finishes often feel arbitrary, based purely on color or texture preferences. Ambientdesigns instead approached finishes as a structured process of “tracing references” from the client’s imagery and inspirations.

By borrowing proportions, styles, and dimensions from kiosk elements, the designers established a visual language that resonates with visitors. Even first-time passersby intuitively recognize the reference to kiosks, creating a shared cultural connection.

Materials and Atmosphere
The interior design employs industrial and natural materials to balance a contemporary look with tactile authenticity. Ashford Japan, Lilikara, Osmocolor/Osmo & Edel were key material manufacturers, while Inoue Industries executed the build.
- Wood and stone details emphasize warmth and natural grounding.
- Glass storefront connects the store to the street, echoing kiosk accessibility.
- Minimal yet bold detailing draws attention to merchandise and exhibitions.
The resulting atmosphere is both functional and experiential — a space where retail merges seamlessly with cultural storytelling.


Redefining Small-Scale Commercial Interiors
Through Tracing, ambientdesigns challenges the conventional notion that commercial design is purely surface-driven. Instead, the project proves that even in limited space, planning, cultural references, and methodical design choices can create impactful environments that go beyond aesthetics.
The outcome is a retail-gallery-studio hybrid that not only showcases art and fashion but also tells a story rooted in Tokyo’s urban identity.

All thr photographs are works of Masato Chiba
Popular Articles
Popular articles from the community
Marvila Apartment Renovation in Lisbon: A Bright Minimalist Attic Transformation by KEMA Studio
Bright attic transformed into minimalist Lisbon apartment with skylights, sustainable materials, open plan layout, and industrial-inspired interior design elements.
Free Architecture Competitions You Can Enter Right Now
No entry fees, real prizes. Here are the best free architecture competitions open for submissions in 2026.
Split House: A Compact Urban Home Blending Privacy, Light, and Flexible Living in Japan
Compact Japanese home featuring DOMA space, flexible café potential, passive lighting, privacy zoning, and sustainable urban living design.
Similar Reads
You might also enjoy these articles
Filtering Space: A Gradual Spatial Experience
From urban intensity to spatial calm.
The Ken Roberts Memorial Delineation Competition (Krob)
As the most senior architectural drawing competition currently in operation anywhere in the world, it draws hundreds of entries each year, awarding the very best submissions in a series of medium-based categories.
Waterfront Redevelopment and Urban Revitalization in Mumbai: Forging a New Dawn for Darukhana
A transformative waterfront redevelopment project reimagining Darukhana’s shipbreaking heritage into an inclusive urban future.
OUT-OF-MAP: A Call for Postcards on Feminist Narratives of Public Space
Rhizoma Design and Research Lab invites artists, designers, architects, researchers, and students to reflect on how feminist perspectives can reshape public space. Selected works will be exhibited in Barcelona, October 2026. Submissions open until 15 April 2026.
Explore Architecture Competitions
Discover active competitions in this discipline
The International Standard for Design Portfolios
The Global Benchmark for Architecture Dissertation Awards
The Global Benchmark for Graduation Excellence
Challenge to reimagine the Iron Throne
Comments (0)
Please login or sign up to add comments
No comments yet. Be the first to comment!