Transforming Urban Landscapes: Community-Focused Green Space Architecture at Cuningar Loop
Discover The Bothy and Tùr at Cuningar Loop: innovative community-focused green space architecture enhancing urban woodland engagement in South Lanarkshire, UK.
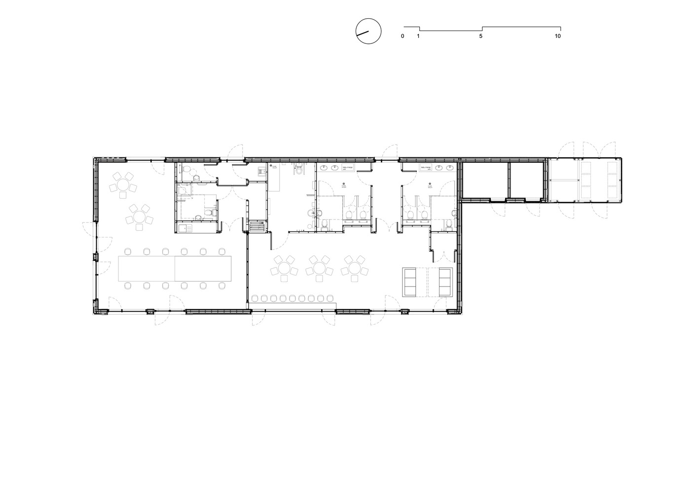
In the bustling heart of the Clyde Gateway, the Cuningar Loop Forestry Park emerges as a beacon of community-focused green space architecture, designed by the visionary team at Jmarchitects. Spanning an impressive 37 acres, this unique urban woodland, accentuated by river frontage and vibrant activity spaces, marks the largest urban park in South Lanarkshire, United Kingdom. Captured through the lens of Keith Hunter Photography, The Bothy and Tùr project embodies the union of innovative design and community spirit.




A New Realm for Community Engagement and Sustainability
The Genesis of The Bothy and Tùr
At its core, The Bothy and Tùr project was conceived to enrich the visitor experience at Cuningar Loop, encouraging prolonged engagement and fostering a deep sense of community. Through the introduction of The Bothy, a space dedicated to group activities and events, and The Tùr, an accessible viewing tower, Jmarchitects have crafted environments that invite exploration, learning, and communal gathering.


Architectural Inspiration Drawn from Tradition
Echoes of Scottish Heritage
Drawing inspiration from the traditional Scottish bothy, the design of The Bothy employs a compact, linear plan reminiscent of the 'but and ben' configuration. This design philosophy not only respects the historical architecture of Scotland but also adapts it to meet the needs of a modern, multifunctional community space.


Merging with the Landscape
The approach to integrating The Bothy and Tùr within the Cuningar Loop was guided by a principle of minimal environmental impact. Utilizing raw materials like charred timber cladding and incorporating a sedum roof, the structures harmonize with their woodland context, becoming a natural extension of the landscape.


Design Details That Matter
Inside Out: Blurring the Boundaries
The interior design of The Bothy is characterized by its minimalistic yet functional approach, using a palette of neutral colors and natural wood textures. Large windows and barn doors open up the space to the surrounding nature, allowing for a seamless transition between indoor and outdoor environments.

Embracing Eco-Friendly Practices
Sustainability at Its Core
In keeping with the ethos of a traditional bothy, the project prioritizes self-sufficiency and minimal environmental impact. Innovations such as air-to-air heat pump heating systems, rainwater harvesting, and photovoltaic panels underscore the commitment to sustainability, aligning with the goals of community-focused green space architecture.



The Tùr: A Beacon of Exploration
Elevating the Visitor Experience
Positioned at one of the park's highest elevations, The Tùr serves not only as a landmark within the park but also as a vantage point offering panoramic views of the city skyline. The accessible walkway to The Tùr, designed with sensitivity to the existing trees and topography, invites all visitors to experience the park from an elevated perspective, enriching their connection to the natural world.



A Testament to Community and Nature
The Bothy and Tùr at Cuningar Loop stands as a testament to the power of community-focused green space architecture. Through thoughtful design and a commitment to sustainability, Jmarchitects have created a space that not only enhances the urban fabric of South Lanarkshire but also cultivates a deeper connection between the community and the natural environment.



All photographs are work of Keith Hunter Photography
Popular Articles
Popular articles from the community
Takeshi Hosaka Architects Suspends a Concrete Cross Above a Yokohama Cemetery
A 28-square-meter burial renovation in Yokohama lifts the symbol of resurrection into the sky so mourners see it against heaven.
Rojkind Arquitectos and Think Parametric Build a Glueless Pavilion from 67 Interlocking Panels
A serpentine fiber-cement installation in Chapultepec Park celebrates a decade of architectural media in Mexico City.
RDTH architekti Rips Out Nearly Every Wall in a Prague Apartment and Replaces Them with Furniture
A 101-square-meter post-war flat in Prague trades rigid partitions for a single rotated furniture block, curtains, and glass concrete.
3dor Concepts Wraps a Kerala Home in Mirrored Concrete Arcs Around a Courtyard Tree
In the Western Ghats foothills of Thamarassery, a 270 m² single-story house uses two curved volumes to frame nature as its center.
Similar Reads
You might also enjoy these articles
CSADI Carves a Jade Blade into the Qinling Mountains for China's First Ecology Museum
A 43,788 square meter terraced museum in Shangluo draws its form from a Xia Dynasty artifact and steps down toward the valley below.
Ippolito Fleitz Group Identity Architects Turn Eight Floors in Shanghai into a Vertical Creative City
Publicis Groupe's new headquarters in Xintiandi reimagines the office as a courtyard-driven urban landscape stacked across eight floors.
Díaz Webster Arquitectura Carves Light and Air into a Compact Zapopan House
A 237-square-meter residence in western Zapopan uses courtyards and double-height voids to dissolve the boundary between interior and garden.
BAST Slots a Four-Story Glass House into a Narrow Gap Between Toulouse Townhouses
In the dense Bonnefoy district, a stepped infill building merges home and office while preserving a majestic hackberry tree.
Explore Architecture Competitions
Discover active competitions in this discipline
The International Standard for Design Portfolios
The Global Benchmark for Architecture Dissertation Awards
The Global Benchmark for Graduation Excellence
Challenge to reimagine the Iron Throne
Comments (0)
Please login or sign up to add comments
No comments yet. Be the first to comment!