

Unify
A youth house that unites varying personalities and environmental conditions, offering social and environmental flexibility.
Introduction
UNIFY is a co-op housing apartment for young entrepreneurs who wish to learn about business and marketing but also wish to expand these businesses. Being situated in Belgium allows young entrepreneurs access to the country’s free-market economy and its adjacent European neighbors. UNIFY is designed to facilitate different levels of work and collaboration, while also allowing young people from different backgrounds to create new bonds and friendships with their peers in positive social environments. It is also designed as a modular building which can be located anywhere on site and oriented in any direction.
Iterative Logic
Our original interpretation of the prompt was a physical separation of the three main program categories: living, working, collaborating. We had imagined the building being separated into three blocks with ideally little interaction between these programs. Upon further brainstorming, research and re-reading the prompt, we started questioning the meaning of “module.” In architecture, for something to be modular it has to be easily replicable in such a way where the module can seamlessly function by itself or with other modules. In the context of this project, one of our design goals was to design a building module which can be replicated anywhere in the site. Hence, the building would have to be able to function by itself or with other buildings.
Caption: Sketches of different unit configurations
We decided to tackle the design in a more personal way. As young university students, we have lived in spaces where we lived, worked and collaborated with others in the same building. After experiencing online university and internships during the COVID-19 pandemic, the idea of program-homogeneous spaces was further challenged when we were conformed to do all three functions in our own bedrooms. With this in mind, we based the barebones of the design on a hierarchy of social interaction:
A young person living in this co-op would interact with their own roommates in a living situation (and to an extent, with neighbors). Their main point of privacy or “alone time” is their own bedroom.
In a working situation, they would want to be exposed to a different environment, ideally exposed to people who also wish to focus on work in this environment
In a collaborative space, they would want to interact with not just people from their working circle, but also with other social circles. This would also apply to other forms of social gathering, whether it be a community event or a party.
Program
When considering the zoning and programmatic guidelines, we settled on each building module having 5 units, which can house up to 18 people. With the given site and zoning requirements, we were able to achieve housing for up to 36 people, 23% ground coverage and a FAR of 0.71.
Units contain 3 or 4 bedrooms and 3.5 or 4.5 bathrooms, with half of the units in the building module designed to be wheelchair-accessible. These unit sizes allowed us to maximize our zoning requirements and our occupancy number. Each bedroom has their own ensuite bathroom for residents to have their own privacy and control of their self hygiene. Kitchen and dining are shared by roommates as these spaces can facilitate the small-scale social interaction described in our hierarchy framework. The stepped massing also allowed opportunities for balconies shared by tenant units. The living room becomes a shared space for tenants of the building; we see this as a space for larger-scale social gatherings among neighbors.
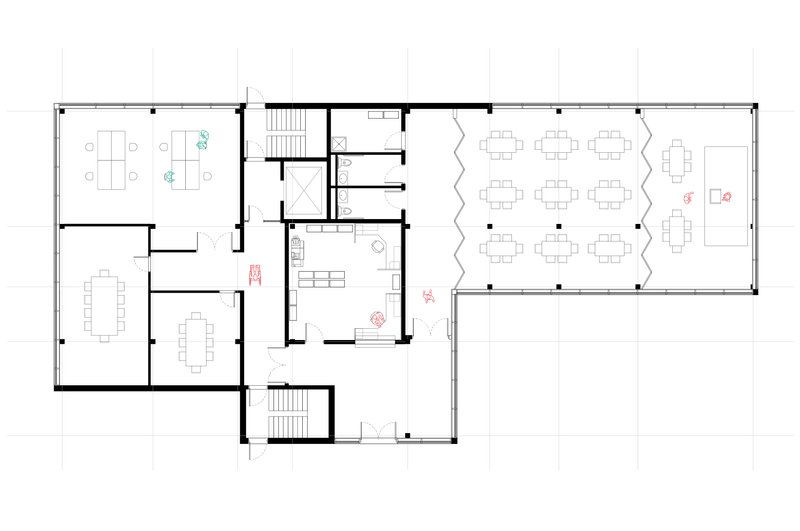
The ground floor houses most of the collaborative spaces where large social gatherings can occur, consisting of a creative studio space, meeting rooms and a large auditorium space. Units are located on 2nd to 4th floors with study spaces and small shared living spaces spread between the upper levels:
Caption: First to Fourth (bottom to top) Floor Building Plans
Materiality and Light
The design’s materiality is based on several aspects. Program location was a major factor in choosing the facade types and distribution of openings. Daylight is treated as a primary material; it is an integral part of creating a better living-working environment. We designed a wood screen facade that responds to three aspects: the natural site, privacy and shading. The bedroom is one of the most private and comfortable spaces in a home. As such, this facade system would be installed in every unit window. In previous iterations, a track system was used on the screen panels themselves to achieve the canopy form but presented some structural issues.
Caption: First iteration with sun angle analysis
Caption: Final facade diagram
This final system attaches the track to the exterior wall, allowing for users to slide the panel away from the window when desired. The screen facade folds horizontally and can act as either a light diffuser and outdoor privacy screen when unfolded, or a canopy when erected.
With the site being in a more suburban and forested area, wood felt like a natural choice that would not only respond to the nature surrounding the site but also the buildings. To maintain the modularity of the design, steel was the chosen structure for the building. White painted elements such as the columns and plaster exterior finish contrast the dark-painted steel and wood screens. Common spaces are surrounded by curtain walls as most working environments desire natural lighting, with spaces like meeting rooms providing opportunity for indoor shading systems. Exterior spaces such as the rooftop and balconies were designed to be social spaces and use existing materiality of steel connections and glass railings.
Future Expansion and Intervention
In this project, we mirrored the building module to achieve the zoning requirements and design requirements we set ourselves to. This configuration also allows for a small courtyard space between the buildings, creating a buffer zone. If a future expansion of the site were to occur, this building module can be duplicated by itself or it can be duplicated with a mirrored module to create micro communities within the site. Because the module can be oriented in any direction, various landscape and urban interventions can be established and even larger social interactions can occur between different buildings or clusters.




