Urban Village Architecture Renovation: A Case Study of Nantou Hybrid Building by URBANUS
The article explores the Nantou Hybrid Building's transformation, a testament to innovative urban village architecture renovation in Shenzhen by URBANUS.
Urban villages are unique entities within modern cities, embodying layers of history, culture, and community life. The renovation of these spaces presents unique challenges and opportunities for architects and urban planners. A compelling example of this is the Nantou Hybrid Building project by URBANUS, located in the heart of Shenzhen's Nantou Old Town.





The Genesis of Nantou Hybrid Building
The story of the Nantou Hybrid Building begins with a comprehensive spatial study initiated by URBANUS in 2016, aimed at rejuvenating the millennia-old town through incremental revitalization. This approach laid the groundwork for a project that would later become a benchmark in urban village architecture renovation.





Strategies for Urban Coexistence
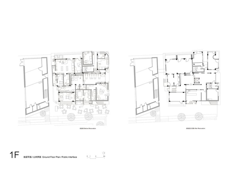
In 2019, the Nantou Hybrid Building project embraced the concept of "Urban Coexistence," applying it to the transformation of a cluster of five historical buildings. This strategy focused on preserving the existing structures' historical layers while introducing modern elements to enhance functionality and aesthetics.







Architectural Design and Innovation
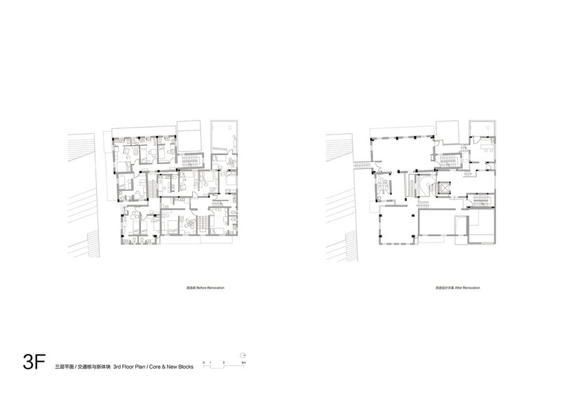
The adaptive reuse design of the Nantou Hybrid Building stands out for its preservation of the complex and contradictory nature of the original structures. The addition of two new volumes on the rooftop—a rectangular and a curvilinear structure—demonstrates a harmonious blend of old and new, solid and void.





Creating a New Circulation Core
The renovation introduced a central void to accommodate a new elevator and staircase, dubbed the "circulation core." This core not only enhances structural integrity but also transforms the building's interior flow, allowing for a seamless blend of communal spaces across different levels.





Enhancing Community Interaction
One of the project's highlights is the transformation of the ground floor into a vibrant, compact layout, fostering a lively urban village lifestyle. The redesign of internal circulation encourages social interactions, turning previously isolated spaces into interconnected communal areas.



Material and Color in Renovation
In preserving the building's facade, URBANUS made selective replacements and additions, creating a colorful collage that reflects the authentic essence of Nantou. This approach highlights the importance of material and color in urban village architecture renovation, contributing to the building's identity and atmosphere.





A New Paradigm in Urban Village Development
The Nantou Hybrid Building serves as a testament to the potential of urban village architecture renovation. By blending historical preservation with modern innovation, URBANUS has not only revitalized a piece of Shenzhen's heritage but also introduced a new typology of vertical communal spaces.
The project goes beyond architectural innovation; it represents a shift in thought, advocating for a future where urban development and historical preservation coexist harmoniously. The Nantou Hybrid Building stands as a beacon of "Urban Coexistence," offering valuable lessons for future urban village renovations.





All photographs are work of Chao Zhang