Vala Apartment by Dasein Office
A contemporary apartment building in Qom redefining vertical living through social circulation, concrete architecture, and a renewed sense of neighborhood.
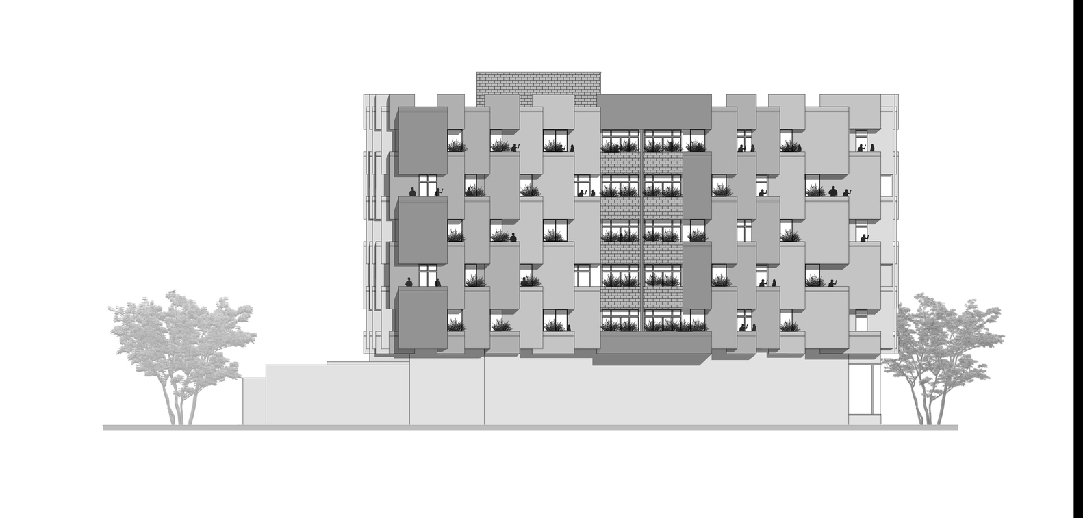
Located in Qom, Vala Apartment is a contemporary residential project that reinterprets collective living within Iran’s dense urban environment. Completed in 2024, the 2,511 m² building accommodates 50 residential units within a single compact volume, proposing a new model for socially connected vertical housing.

Designed under the leadership of Ali Khosh Mehri, the project responds to a central architectural question: how can high-density housing foster belonging, awareness, and everyday interaction in modern cities?
Context: Housing in a Vertical City
Rapid urban growth in Iranian cities has led to increasingly vertical residential developments. While efficient, many of these buildings prioritize maximum density over social quality, resulting in anonymous corridors, isolated apartments, and weak community ties.


Vala Apartment challenges this model by redefining circulation and shared spaces as active social environments. Instead of treating movement areas as neutral infrastructure, the project transforms them into meaningful places for encounter, pause, and observation.
In doing so, it seeks to restore the sense of neighborhood traditionally found in low-rise urban fabrics.


Design Concept: Reimagining the Vertical Neighborhood
The conceptual foundation of Vala Apartment lies in translating the spatial logic of traditional Iranian alleyways into a vertical format.
In historic neighborhoods, narrow pathways functioned not only as routes of movement but also as social spaces where daily life unfolded. Conversations, informal gatherings, and shared rituals occurred naturally within these transitional zones.

Vala reinterprets this idea through a system of layered circulation paths that extend vertically throughout the building. These routes create a network of interconnected spaces that encourage interaction and presence.
Rather than isolating residents within private units, the architecture promotes collective awareness and shared experience.

Circulation as Social Infrastructure
The circulation system is the project’s defining architectural element. Corridors, stairs, and transitional platforms are carefully shaped to function as semi-public spaces.
Through variations in width, height, and enclosure, the architects create a dynamic sequence of spatial conditions:
- Open balconies
- Semi-open corridors
- Enclosed passages
- Overlapping visual connections
- Light-filled transition zones

These variations prevent monotony and encourage residents to slow down, observe their surroundings, and engage with others.
Movement becomes an experiential journey rather than a purely functional act.
Spatial Organization and Residential Structure
The building contains 50 housing units organized around the vertical circulation network. Apartments are arranged to maintain privacy while remaining visually and spatially connected to shared routes.
This balance allows residents to participate in collective life without sacrificing personal comfort.

The structure integrates:
- Private living spaces
- Shared circulation zones
- Semi-public balconies
- Intermediate gathering areas
- Visual links between levels
This layered organization supports multiple degrees of interaction, from casual encounters to intentional social exchange.
Materiality and Architectural Expression
The exterior of Vala Apartment is defined by exposed concrete surfaces and projecting balconies. This material palette expresses solidity, permanence, and honesty.
Concrete serves both structural and aesthetic roles, reinforcing the building’s monolithic character while allowing precise articulation of openings and terraces.

Balconies are treated as extensions of interior life. Their rhythmic repetition establishes a strong urban identity while offering residents outdoor spaces connected to circulation paths.
The restrained material approach ensures durability and minimizes maintenance, supporting long-term sustainability.
Light, Shadow, and Spatial Atmosphere
Natural light plays a crucial role in shaping the building’s spatial experience. Openings, recesses, and balconies allow daylight to penetrate deep into circulation zones.
As sunlight moves throughout the day, it generates shifting patterns of light and shadow along corridors and stairways. These variations enhance spatial richness and reinforce a sense of time and rhythm.

This dynamic atmosphere encourages residents to perceive their environment consciously rather than passively.
Collective Living and Conscious Presence
A central ambition of the project is to transform everyday presence into a meaningful experience.
By designing circulation as social space, Vala encourages residents to become aware of each other’s routines, movements, and rhythms. This shared awareness supports informal bonds and mutual recognition.

The architecture does not impose social interaction, but gently enables it through spatial proximity and visual connection.
In this way, collective living emerges naturally rather than through programmed activities.
Cultural Continuity and Contemporary Interpretation
While Vala Apartment is a contemporary structure, its spatial logic draws from traditional Iranian urban patterns. Courtyard houses, alleyways, and layered thresholds have long shaped social life in historic settlements.

The project translates these principles into a vertical typology suited to modern conditions.
This continuity strengthens cultural relevance and grounds the building within its local context, avoiding imported or generic housing models.
Sustainability Through Social and Spatial Design
Sustainability in Vala Apartment extends beyond energy performance. It is understood as social durability and long-term relevance.

Key sustainable aspects include:
- Compact massing
- Efficient land use
- Passive daylighting
- Reduced dependence on artificial lighting
- Durable concrete construction
- Strengthened community bonds

By fostering social cohesion, the building reduces residential turnover and promotes long-term occupancy, contributing to urban stability.
Redefining High-Density Housing
Vala Apartment offers an alternative vision for dense residential development in Iran and similar contexts. Instead of treating density as a limitation, the project uses it as an opportunity to intensify social life.
Through its circulation network and layered spaces, the building demonstrates that vertical housing can support neighborhood identity and emotional connection.
It challenges the assumption that high-rise living must be anonymous.
Architecture as a Framework for Community
More than a residential block, Vala functions as a framework for everyday relationships. It accommodates privacy, interaction, solitude, and participation within a unified spatial system.
Residents are not merely occupants of isolated units but members of a vertically organized community.

This approach reflects a broader understanding of architecture as a facilitator of social life rather than a neutral container.
A Contemporary Model for Urban Housing
Vala Apartment stands as a significant contribution to contemporary housing design in Iran. By integrating cultural memory, spatial intelligence, and social awareness, Dasein Office presents a thoughtful response to urban densification.
The project illustrates how modest architectural interventions—when strategically conceived—can profoundly influence daily life.
It serves as a reference for future residential developments seeking to balance efficiency with human connection.
Popular Articles
Popular articles from the community
Solar Steam: A Climate-Responsive Architecture That Redefines the Monument
A climate-responsive memorial architecture that transforms heat, decay, and time into a living system reflecting humanity’s ecological impact.
Inverted Architecture Installation by Studio Link-Arc: Exploring the Intersection of Architecture and Living Organisms
Inverted Architecture Installation by Studio Link-Arc blends mycelium, sustainability, inverted design, ecological cycles, and urban adaptive architecture in Shenzhen.
A Contemporary Take on Iranian Residential Architecture
A modern interior design in Mashhad that reinterprets brick, light, and spatial flow to create a warm, contemporary residential architecture.
Flamboyant House by Juliana Camargo + Prumo Projetos
Modern Brazilian house integrating existing tree, pool, and volumes with glass, wood, and transitional spaces blending interior, exterior, and landscape seamlessly.
Similar Reads
You might also enjoy these articles
The Ken Roberts Memorial Delineation Competition (Krob)
As the most senior architectural drawing competition currently in operation anywhere in the world, it draws hundreds of entries each year, awarding the very best submissions in a series of medium-based categories.
Waterfront Redevelopment and Urban Revitalization in Mumbai: Forging a New Dawn for Darukhana
A transformative waterfront redevelopment project reimagining Darukhana’s shipbreaking heritage into an inclusive urban future.
OUT-OF-MAP: A Call for Postcards on Feminist Narratives of Public Space
Rhizoma Design and Research Lab invites artists, designers, architects, researchers, and students to reflect on how feminist perspectives can reshape public space. Selected works will be exhibited in Barcelona, October 2026. Submissions open until 15 April 2026.
Documentation Work on Buddhist Wooden Temple
Architectural syncretism and cultural hybridity: A comparative study of the Buddhist temples in Chattogram Hill tracks
Explore Architecture Competitions
Discover active competitions in this discipline
The International Standard for Design Portfolios
The Global Benchmark for Architecture Dissertation Awards
The Global Benchmark for Graduation Excellence
Challenge to design mud housing for contemporary communities
Comments (0)
Please login or sign up to add comments
No comments yet. Be the first to comment!