Varanasi Bamboo House: A Five-Level Family Home Built Around a Living Core
A compact vertical residence for three generations uses bamboo, planted shafts, and passive cooling to confront Varanasi's extreme climate.
When your site is barely four meters wide and your climate swings from 48°C summer peaks to 5°C winter lows, conventional housing logic falls apart. The Varanasi Bamboo House rebuilds that logic from scratch, stacking five levels of intergenerational living around a central planted void that functions simultaneously as light well, ventilation shaft, and vertical garden. It is a house organized not around corridors but around breath.
Designed by Ines Tisch, the project responds to the dense urban fabric of Varanasi, Uttar Pradesh, where narrow plots, extreme seasonal variation, and multigenerational households are the norm rather than the exception. The residence accommodates a family of six: grandparents, parents, and two children, each generation given its own private zone while sharing communal terraces and a central living space that threads through the section.
A Planted Shaft as the Heart of the Section


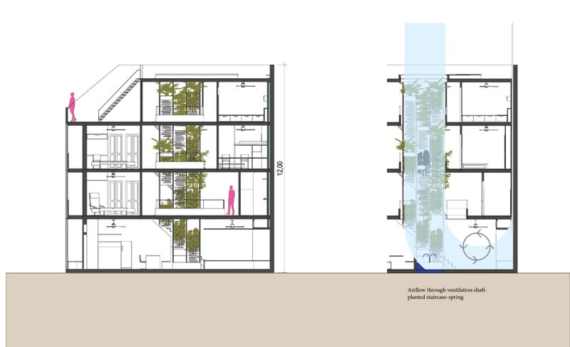
The defining move here is the central void. Running the full height of the house, this planted staircase shaft pulls hot air upward through stack effect ventilation while filtering daylight down into every level. Interior vignettes reveal how greenery spills into each floor, softening the hard edges of concrete ceilings and brick walls. The shaft transforms what would otherwise be a dark, narrow tube into a house that breathes and glows from the inside out.
The floor plan sequence confirms how tightly this is organized. At just 4.09 meters wide, there is no room for wasted circulation. Each level is a single programmatic zone: grandparents occupy the first level, parents the second, children above, with shared living and terrace spaces woven between. Built-in storage under benches and at ground level absorbs the clutter that compact living inevitably produces. The result reads less like a stack of apartments and more like a continuous domestic landscape.
Passive Strategies for a 43-Degree Temperature Swing

The section drawing lays bare the thermal logic. In summer, the vertical shaft and bamboo shading work together: bamboo cladding on exterior walls filters direct solar gain while the planted void draws air through the house via natural convection. A ground-level spring further cools incoming air at the base of the stack. In winter, the strategy inverts. Upper terraces and living areas are positioned to capture solar warmth, and the thermal mass of brick walls and concrete slabs stores heat through cold nights. During monsoon, closable roofing systems seal the top of the shaft, preventing rain ingress while maintaining airflow through lower openings.
The adjacent ventilation diagram makes the layering explicit: each floor has its own relationship to the central shaft, calibrated by operable openings and the density of planting at that level. It is a simple system, but one that requires careful tuning across five floors and three seasons. The minimal glazing and local architectural typologies for glass panels and doors keep costs low while reinforcing the cultural context of Varanasi's built environment.
Bamboo, Brick, and the Economics of Low-Carbon Construction

The cutaway rendering exposes the material palette in full: bamboo for shading screens, wall cladding, and vertical green wall structures; brick for load-bearing walls; concrete for floor slabs. The bamboo elements are not decorative. They regulate light transmission, support climbing plants that contribute to the microclimate, and provide a renewable, low-carbon alternative to steel or aluminum cladding. Combined with passive design strategies, this material assembly keeps embodied energy and construction costs low enough to suggest replicability across Varanasi's dense neighborhoods.
Miniature figures at street level ground the scale. The house reads as a slender vertical insertion into the existing urban grain, no wider than its neighbors but far more thermally intelligent. Its narrowness, often a liability in residential design, becomes an asset: the shallow plan depth means every room has access to both the central shaft and an exterior wall, eliminating deep, dark zones entirely.
Why This Project Matters
India's urban housing crisis is not primarily a shortage of square meters. It is a shortage of intelligence applied to the square meters that exist. The Varanasi Bamboo House demonstrates that a plot barely four meters wide can accommodate three generations with dignity, comfort, and genuine climate responsiveness, all without mechanical cooling or imported materials. That combination of spatial economy and environmental performance is rare in student work, and rarer still in built housing.
What makes Ines Tisch's proposal credible is its refusal to treat sustainability as an add-on. The planted shaft is not a green amenity; it is the organizing principle of the entire section, driving ventilation, daylighting, spatial perception, and the daily experience of moving through the house. If compact urban housing in extreme climates has a future, it will look something like this: vertical, vegetal, and built around airflow rather than air conditioning.
View the Full Project
About the Designers
Designer: Ines Tisch
Enter a Design Competition on uni.xyz
uni.xyz runs architecture and design competitions year-round that reward proposals with spatial conviction and real site intelligence.
Project credits: Varanasi Bamboo House by Ines Tisch.
Popular Articles
Popular articles from the community
YOAP Architects Round a Corner in Yeongcheon with a Cylindrical Community Hub
A 197-square-meter brick and ribbed-clad tower turns a forgotten alley corner in South Korea into a public garden with a low threshold.
HCCH Studio Wraps a Shanghai High-Rise Office in Curved Walls of Translucent Glass
A 1,000 square meter fit-out in Lujiazui replaces the typical tech-office palette with layered glass, micro-cement, and quiet rigor.
Takeshi Hosaka Architects Suspends a Concrete Cross Above a Yokohama Cemetery
A 28-square-meter burial renovation in Yokohama lifts the symbol of resurrection into the sky so mourners see it against heaven.
RDTH architekti Rips Out Nearly Every Wall in a Prague Apartment and Replaces Them with Furniture
A 101-square-meter post-war flat in Prague trades rigid partitions for a single rotated furniture block, curtains, and glass concrete.
Similar Reads
You might also enjoy these articles
317studio Turns an 87 m² Classroom into a Forest Clearing for Scouts in New Taipei City
A rope canopy, student-made specimens, and campfire geometry replace rows of desks in this Scouting classroom in Xizhi District.
24 7 Arquitetura Builds a Timber Pavilion as a Family's First Act on a 5,000 m² Brazilian Plot
In Jaguariúna, a prefabricated glulam house nestles among mature trees as the opening move of a larger residential masterplan.
1+1>2 Architects Build a School from 900 Blocks of Hmong Stone on Vietnam's Rocky Plateau
On a barren valley in Ha Giang province, a community quarried its own stone to raise a kindergarten and primary school rooted in Hmong identity.
100A Associates Builds a Volcanic Stone Retreat on Jeju Island Rooted in Ritual and Restraint
Watarstay [Wa:Tar] in Bongseong-ri channels Jeju's basalt, reed, and hemp into a 150 m² hospitality space shaped by contemplation.
Explore Housing Competitions
Discover active competitions in this discipline
The International Standard for Design Portfolios
The Global Benchmark for Architecture Dissertation Awards
The Global Benchmark for Graduation Excellence
Challenge to reimagine the Iron Throne
Comments (0)
Please login or sign up to add comments
No comments yet. Be the first to comment!