Villa Yume House By QBO3 Arquitectos: A Contemporary Coastal Residence in Costa Rica
Villa Yume by QBO3 Arquitectos is a contemporary tropical home, blending bold geometry, ocean views, and seamless indoor-outdoor living.
Villa Yume House, designed by QBO3 Arquitectos, is a striking contemporary residence located within the exclusive Papagayo Peninsula, Costa Rica. Completed in 2023, this 1,382 m² private home exemplifies modern tropical architecture, seamlessly blending bold geometric expression with the raw, dramatic beauty of its coastal landscape. Set against panoramic views of the Pacific Ocean, Villa Yume is conceived as both an architectural statement and a deeply contextual response to its environment.


Architecture Rooted in Landscape
Perched on a sloped terrain overlooking the horizon, Villa Yume is carefully positioned to engage with the site’s topography rather than dominate it. The architectural design draws inspiration from the natural contours of the land, allowing the house to unfold gradually across levels while maintaining uninterrupted visual connections to the ocean. This sensitive siting ensures that the residence feels anchored to its surroundings, enhancing privacy while maximizing views, light, and ventilation.
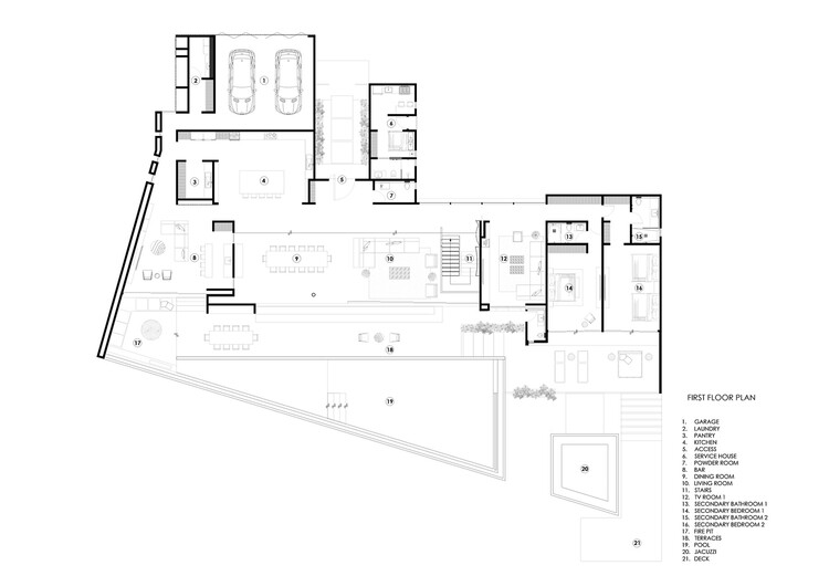
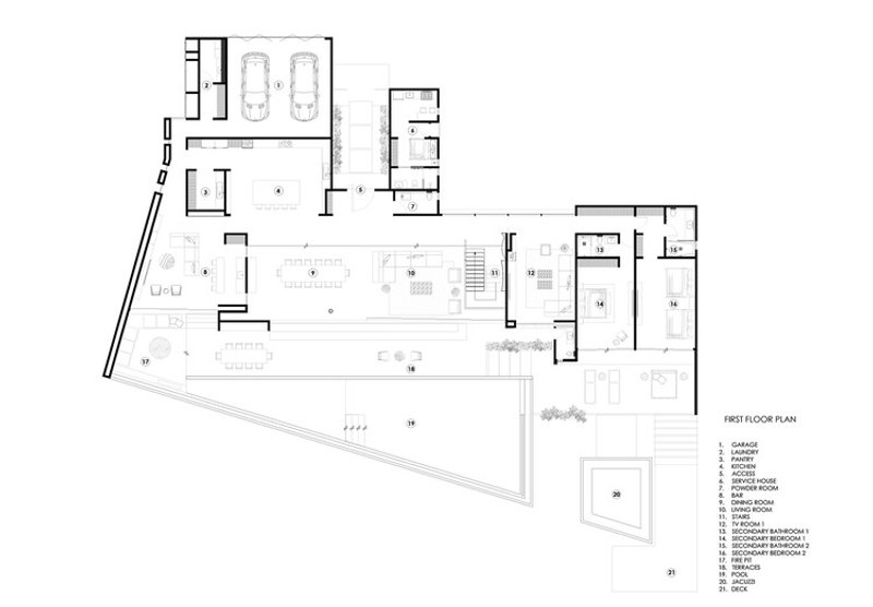
At the heart of the project lies a strong diagonal axis, a defining conceptual and spatial element that shapes the entire composition. This diagonal functions as the project’s spine, guiding circulation, structuring the plan, and orchestrating the relationship between volumes. Rather than serving as a purely formal gesture, it becomes an organizing principle that brings clarity, movement, and spatial drama to the home.


Fluid Spatial Organization and Indoor-Outdoor Living
The diagonal axis plays a crucial role in separating and connecting public and private zones. Social spaces—including the living room, dining area, and kitchen—are arranged along this line, culminating in an extraordinary 17-meter-wide opening that frames unobstructed views of the Pacific Ocean. This expansive span dissolves the boundary between interior and exterior, reinforcing the essence of tropical indoor-outdoor living.
Large openings, balconies, and terraces extend the living spaces outward, encouraging constant interaction with the surrounding climate and scenery. Natural cross-ventilation and abundant daylight reduce reliance on artificial systems, supporting both comfort and sustainability. From nearly every vantage point within the social core, the ocean remains a constant presence, shaping daily life within the home.


Materiality, Craft, and Atmosphere
Villa Yume’s material palette is carefully curated to complement its architectural clarity and tropical setting. High-quality finishes from manufacturers such as BIOTILE and Highlights.CR contribute to the home’s refined yet restrained aesthetic. Clean lines, textured surfaces, and warm interior elements create a balance between minimalism and comfort, while exterior balconies and shaded areas respond to Costa Rica’s climate.
The interiors emphasize openness and continuity, with furniture and architectural elements aligned to preserve views and reinforce spatial flow. Every detail—from the structural logic to the placement of balconies—supports a cohesive architectural narrative centered on harmony with nature.


A Contemporary Tropical Icon
More than a luxury residence, Villa Yume House represents a thoughtful exploration of modern architecture in a tropical context. Through its bold geometry, diagonal-driven organization, and deep respect for landscape, QBO3 Arquitectos have created a home that is both visually powerful and experientially rich. It stands as a refined example of contemporary residential architecture in Costa Rica, where design, site, and lifestyle converge.


All the photographs are works of Mavix. Hugo Tirso Dominguez , Depth.Lens Alvaro Fonseca