Village House : Residential Architecture by Peninsula Arquitetura
A São Paulo house renovation that unifies two fragmented homes through refined circulation, natural light, and subtle architectural continuity.
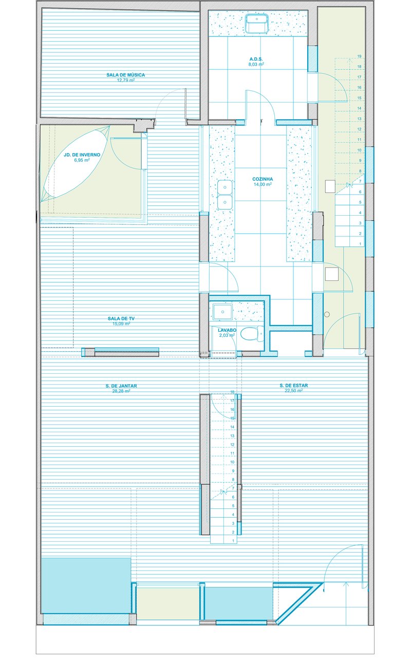
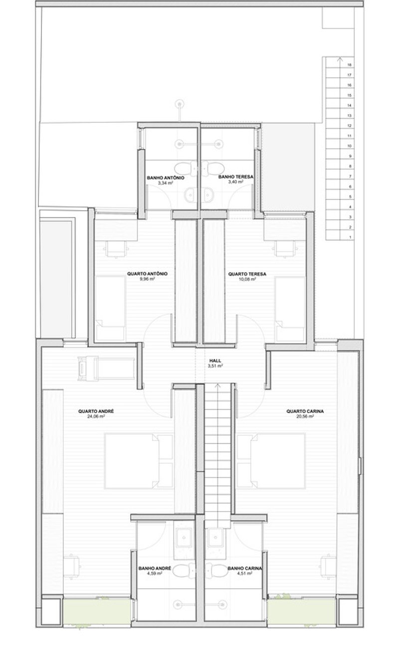
The Village House, designed by Peninsula Arquitetura in São Paulo, is a careful architectural operation of repair, reinterpretation, and continuity. Rather than expanding the built area or introducing conspicuous new forms, the project focuses on stitching together what already existed, transforming two formerly semi-detached houses into a single, legible domestic organism.


This renovation demonstrates how architectural clarity can emerge not from addition, but from subtraction, reorganization, and precise spatial calibration.

From Fragmentation to Unity
The original building resulted from the junction of two row houses that had been superficially “regularized” without addressing their spatial contradictions. The diagnosis revealed a fragmented interior: ambiguous rooms, overlapping uses, underutilized spaces, and a staircase awkwardly inserted to connect levels. Circulation lacked logic, and natural light entered timidly, unable to structure everyday life.

The architects’ central objective was to restore meaning and continuity, transforming disconnected halves into a coherent whole. The house was approached as a single system, where circulation, light, and program could once again operate together.

Refinement Instead of Addition
The intervention strategy favored refinement over accumulation. Unnecessary partitions were removed, pathways were clarified, and the program was reorganized to strengthen relationships between spaces. Social areas were brought closer together to encourage gathering and shared use, while service and support spaces gained efficiency and definition.


Vertical circulation was redesigned as a clear organizing element—a spatial spine that orients movement and reduces wasted transitions. This rationalization freed up usable area and reinforced the sense of continuity between floors.

Light as a Structuring Element
Natural light became an active architectural tool. New visual connections were established, axes were extended, and openings were carefully recalibrated so that light could flow across spaces. Rather than acting as a background condition, daylight now marks rhythms, uses, and durations, stitching together daily life within the house.


The result is an interior where orientation feels intuitive, and movement unfolds naturally through light-filled sequences.
Ceilings as Spatial Devices
One of the project’s most defining gestures lies in the treatment of ceilings. In the social areas and the studio/playroom, ceilings ceased to function merely as finishes and instead became primary spatial organizers. Variations in height, precise junctions with cabinetry, and controlled transitions define zones without relying on additional walls.


This approach allowed the architects to manage acoustics, conceal technical infrastructure, and establish a continuous visual horizon that subtly guides the eye and movement throughout the house.
Material Continuity and Memory
The material palette was conceived as synthetic and integrative, capable of unifying old and new without erasing the building’s history. Existing textures, proportions, and alignments were preserved where meaningful, while other elements were repositioned or reinterpreted to achieve functional and formal coherence.


This balance between preservation and transformation ensures that the house retains its layers of memory while operating clearly in the present.
Outdoor Spaces and Everyday Rituals
In the playroom, a small “house within the house” became an affectionate focal point for family life. Above it, a newly created terrace with a garden and planter extends the domestic space outdoors. This terrace encourages daily interaction with greenery, introduces shading, and promotes cross-ventilation, reducing reliance on mechanical conditioning.


The outdoor space is not treated as an accessory, but as an integral part of everyday routines—slowing the pace of life and reinforcing the house’s relationship with climate and nature.

A Quiet, Precise Transformation
The Village House is ultimately defined by restraint. Its success lies not in dramatic gestures, but in clarity of use, generosity of light, and respect for what already existed. Form, function, and memory coexist in a renewed equilibrium, producing a home that feels intuitive, calm, and deeply inhabitable.



All the Photographs are works of Maira Acayaba
Popular Articles
Popular articles from the community
20 Most Popular Commercial Architecture Projects of 2025
From sustainable market concepts to heritage factories, the commercial buildings and proposals that drew the most attention on uni.xyz this year.
Magic Box Office Barcelona Innovative Sustainable Workplace Design
Innovative sustainable office design featuring triangular form, ceramic façade, flexible interiors, natural light optimization, and creative workspace for modern work culture.
Split House: A Compact Urban Home Blending Privacy, Light, and Flexible Living in Japan
Compact Japanese home featuring DOMA space, flexible café potential, passive lighting, privacy zoning, and sustainable urban living design.
Free Architecture Competitions You Can Enter Right Now
No entry fees, real prizes. Here are the best free architecture competitions open for submissions in 2026.
Similar Reads
You might also enjoy these articles
Filtering Space: A Gradual Spatial Experience
From urban intensity to spatial calm.
The Ken Roberts Memorial Delineation Competition (Krob)
As the most senior architectural drawing competition currently in operation anywhere in the world, it draws hundreds of entries each year, awarding the very best submissions in a series of medium-based categories.
Waterfront Redevelopment and Urban Revitalization in Mumbai: Forging a New Dawn for Darukhana
A transformative waterfront redevelopment project reimagining Darukhana’s shipbreaking heritage into an inclusive urban future.
OUT-OF-MAP: A Call for Postcards on Feminist Narratives of Public Space
Rhizoma Design and Research Lab invites artists, designers, architects, researchers, and students to reflect on how feminist perspectives can reshape public space. Selected works will be exhibited in Barcelona, October 2026. Submissions open until 15 April 2026.
Explore Architecture Competitions
Discover active competitions in this discipline
The International Standard for Design Portfolios
The Global Benchmark for Architecture Dissertation Awards
The Global Benchmark for Graduation Excellence
Challenge to reimagine the Iron Throne
Comments (0)
Please login or sign up to add comments
No comments yet. Be the first to comment!