Willaston Harmony School: Bridging Cultures Through Education and Design
A beacon of cultural reconciliation and environmental harmony in Australia
The Willaston Harmony School project created by Jiwon Lee, Hanna jeong, Winner entry of Experiential competition, stands as a testament to the transformative power of architecture and education. Located in Willaston, Australia, this unique institution seamlessly blends the principles of Waldorf education with the rich cultural heritage of the local Indigenous community. More than just a school, it's a symbol of reconciliation, fostering harmony between students, nature, and Indigenous traditions. This article delves into the project's core concepts, design elements, and the profound impact it aims to have on students and the broader community.

Conceptual Foundation: Weaving Together Education and Culture
At the heart of the Willaston Harmony School project lies a profound commitment to fostering a harmonious relationship between students, nature, and the Indigenous community. Inspired by the organic forms found in nature, the design reflects the interconnectedness of life. By integrating Waldorf education principles with Indigenous creation myths, the project creates a learning environment that honors and resonates with nature, promoting a sense of unity and cultural understanding.

Design Elements: An Immersive Learning Landscape
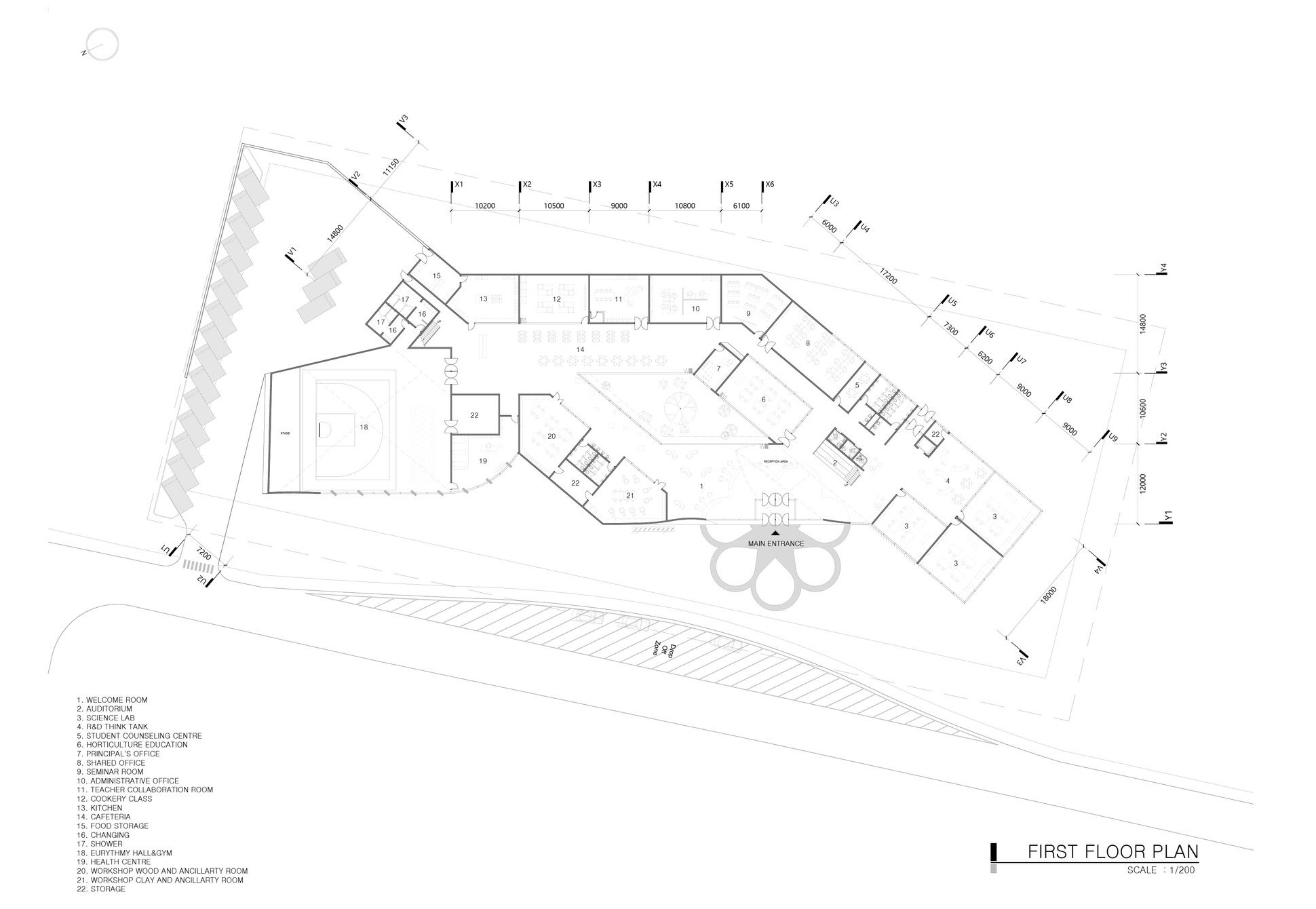
The architectural design of the Willaston Harmony School is a symphony of elements carefully orchestrated to create an immersive and stimulating learning environment:
Stimulation, Communication, and Symbolism: The layout is intentionally designed to encourage interaction and communication. Skylights bathe the spaces in natural light, symbolizing enlightenment and clarity, while the dynamic interplay of light and shadow throughout the day creates a vibrant and engaging atmosphere..
Nature's Embrace: Drawing inspiration from the shapes of plants, the design incorporates variations in column spacing and structural elements that mimic natural forms. This creates a sense of movement and fluidity, blurring the lines between the built environment and the natural world.
A Palette of Nature: Natural materials and vivid colors, reflective of the local landscape, create a warm and inviting atmosphere. This palette not only enhances aesthetic appeal but also promotes a calming and nurturing environment for the children.
Experiential Spaces: The school is designed to evoke a sense of rhythm and movement, with spaces that encourage exploration and discovery. Curved walls and gradually changing columns create an experiential environment that stimulates the senses and fosters a deeper connection with the surroundings.
Cultural Integration: Designated spaces within the school are dedicated to social and cultural activities, promoting integration and mutual respect. These areas serve as hubs for cultural exchange and learning, reinforcing the project's commitment to reconciliation and community harmony.
Geometry in Harmony: The design incorporates a balanced blend of symmetry and asymmetry, creating a sense of order and organic growth. The geometric plan and section designs are meticulously crafted to provide a sense of structure while allowing for flexibility and adaptation.

Design Process: A Journey of Integration
The design process was a meticulous and iterative journey, guided by a deep understanding of the site and its cultural significance:
Initial Massing and Site Integration: The initial mass was carefully positioned to integrate seamlessly with the site's topography and to be separated from the road, allowing for an immersive natural experience. A central courtyard was envisioned as the heart of the school, fostering connection with nature.
Detailing Skylights and Ceiling Features: Skylights and ceiling features were strategically incorporated to enhance natural lighting and create a dynamic interplay of light and shadow.
Dynamic Dimensions and Curved Surfaces: The design embraced continuously changing dimensions through twisting masses and curved surfaces on the roof, adding a sense of movement and fluidity to the overall structure.

Design Goals: A Vision for Harmony
The Willaston Harmony School project is guided by six primary design goals:
Creating a Stimulating Environment: Fostering interaction, collaboration, and a strong sense of community among students.. Integrating Waldorf Philosophy and Indigenous Myths: Weaving together the natural learning environment emphasized by Waldorf education with the reverence for nature found in Indigenous creation myths.
Utilizing Site Topography: Seamlessly connecting the school with the surrounding natural environment, promoting exploration and adventure.
Creating an Experiential Space: Engaging the senses and fostering a deeper connection with the surroundings through dynamic and varied spaces.
Embracing Natural Light: Utilizing natural light to create a dynamic and ever-changing atmosphere, enhancing the learning environment.
Fostering Social and Cultural Integration: Promoting community harmony and cultural reconciliation through dedicated spaces for social and cultural activities.

Architectural Impact and Efficiency
The Willaston Harmony School project is designed to be both aesthetically pleasing and functionally efficient:
Energy Efficiency: Maximizing natural lighting through skylights and windows reduces energy consumption and creates a more pleasant indoor environment.
Thermal Comfort: Natural ventilation strategies and thermally efficient materials maintain a comfortable indoor climate, minimizing reliance on mechanical systems.
Sustainable Materials: Locally sourced, natural materials reduce the building's carbon footprint and support the local economy.
Adaptable Spaces: Flexible design allows for future adaptations, ensuring the building can evolve to meet changing needs.
Enhanced Learning Environment: Visually and physically stimulating spaces enhance the overall learning experience, encouraging exploration and discovery.

Impact on Children Over Time
The unique integration of Waldorf education and Indigenous cultural elements promises to have a profound and lasting impact on students:
Enhanced Cultural Awareness and Respect: Immersing students in a setting that celebrates Indigenous culture fosters a deep respect for diversity and encourages empathy.
Stronger Connection to Nature: The emphasis on natural materials and interaction with the environment instills a lifelong appreciation for nature and environmental stewardship.
Holistic Development: The Waldorf philosophy, supported by the school's design, promotes the development of the whole child—intellectually, emotionally, and physically.
Creativity and Imagination: Dynamic and experiential spaces stimulate creativity and problem-solving skills.
Community and Social Skills: Communal spaces and cultural areas foster interaction, collaboration, and the development of strong social bonds.
Resilience and Adaptability: The school's fluid and dynamic environment helps students develop resilience and adaptability, preparing them to navigate change with confidence.

A Legacy of Harmony
The Willaston Harmony School project exemplifies the power of architecture to bridge cultures and create a more inclusive and harmonious world. By weaving together Waldorf education and Indigenous cultural elements, the project fosters a deep connection to nature, a strong sense of community, and a respect for diversity. This unique learning environment will shape the minds of young learners, empowering them to become ambassadors of cultural understanding, environmental stewardship, and holistic development, leaving a lasting legacy for generations to come.

Popular Articles
Popular articles from the community
MIDW Casts a Pavilion Roof from the Earth Itself at the 2025 Osaka Expo
On a fragile reclaimed island, excavated soil becomes formwork for a concrete canopy that will eventually disappear into wisteria.
Atelier LAI Scatters a Timber Resort Across a Terraced Anhui Valley
Nanshan Junning Resort uses wood joinery and topographic sensitivity to settle 6,700 square meters into a ten-meter slope near Hefei.
Sam Crawford Architects Anchors a Sports Pavilion in 10,000 Years of Indigenous History
A V-shaped brick and steel pavilion in southwest Sydney translates ancient clay ovens and gathering traditions into civic architecture.
MAVA Design Turns a Column-Riddled Shell into a Serene Hair Extension Salon in Kyiv
Inside a former motorcycle factory campus, a 110 square metre beauty atelier treats structural obstacles as spatial anchors.
Similar Reads
You might also enjoy these articles
1+1>2 Architects Build a School from 900 Blocks of Hmong Stone on Vietnam's Rocky Plateau
On a barren valley in Ha Giang province, a community quarried its own stone to raise a kindergarten and primary school rooted in Hmong identity.
100A Associates Builds a Volcanic Stone Retreat on Jeju Island Rooted in Ritual and Restraint
Watarstay [Wa:Tar] in Bongseong-ri channels Jeju's basalt, reed, and hemp into a 150 m² hospitality space shaped by contemplation.
MARBĂ„ Artquitectura Carves a Green Courtyard into a Dense Barcelona Ground Floor
A former parish, printing press, and bazaar in L'Hospitalet de Llobregat becomes a bioclimatic live-work home organized around a central garden.
Steimle Architekten Carves a Monolithic Fire Station from Red Concrete in Germersheim
A sculptural civic building at the southern gateway to Germersheim channels the weight of red sandstone into a flexible emergency facility.
Explore Architecture Competitions
Discover active competitions in this discipline
The International Standard for Design Portfolios
The Global Benchmark for Architecture Dissertation Awards
The Global Benchmark for Graduation Excellence
Challenge to design public laboratory
Comments (0)
Please login or sign up to add comments
No comments yet. Be the first to comment!