Innovative Sustainable Homes in Indonesia: Unveiling Grande House by Patio Livity
Discover Grande House in Indonesia, a masterpiece of sustainable architecture by Patio Livity, blending eco-innovation with security and luxury living.
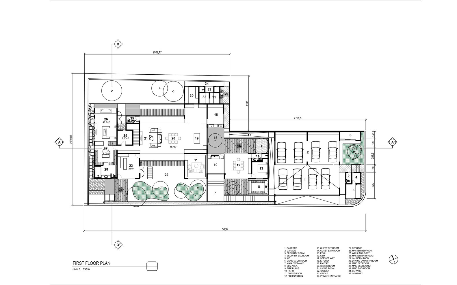
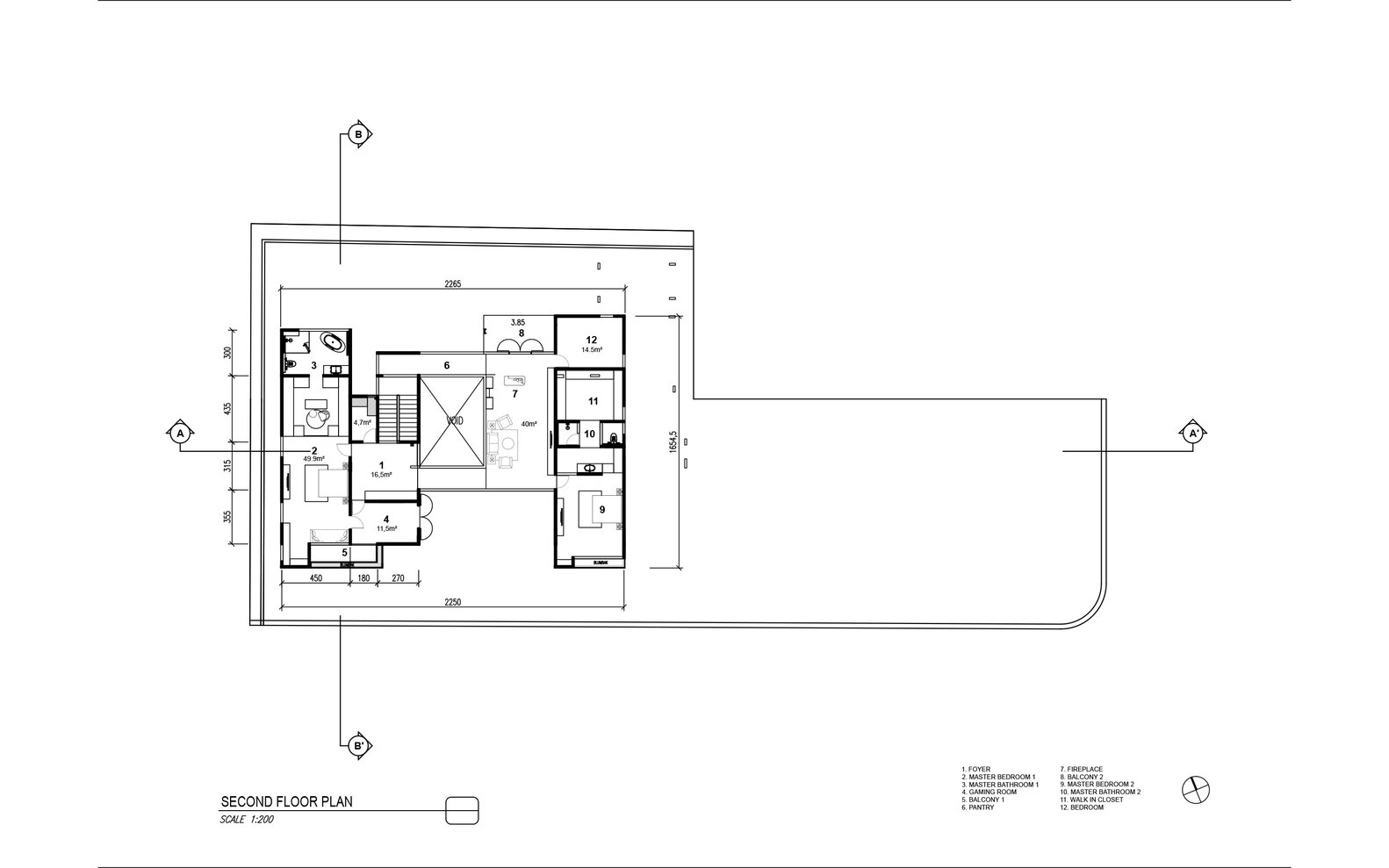
In the evolving landscape of residential architecture, the Grande House in Bandung, Indonesia, emerges as a pinnacle of sustainability and innovation. Designed by Patio Livity, this 1,456 square meter property sets a new standard for eco-friendly living, blending advanced green technologies with aesthetic elegance. This article explores the sustainable design principles and innovative features that define the Grande House.


A Vision for Sustainability
Embracing Natural Elements
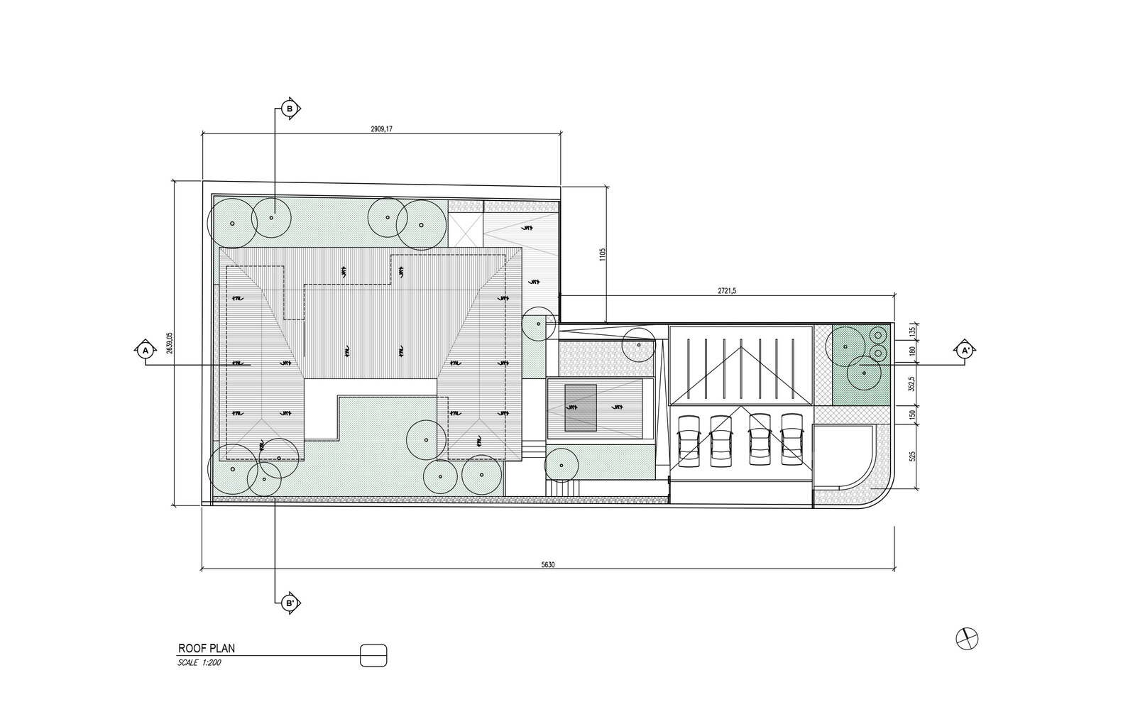
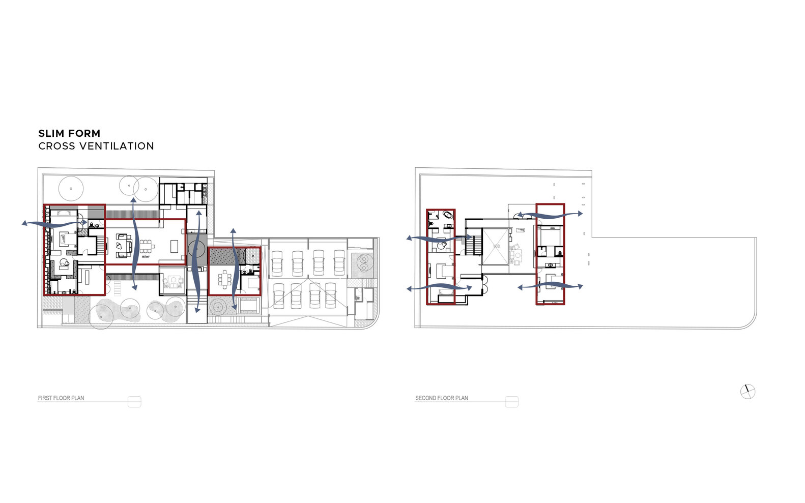
The Grande House stands as a testament to the harmonious balance between architectural innovation and the natural environment. With a 56-meter façade that welcomes sunlight and promotes natural ventilation, the design focuses on creating a comfortable living space that reduces energy consumption. The house's orientation and structure are meticulously planned to harness the south winds, enhancing the natural cooling effect throughout the property.



Sustainable Design Features
Innovative solutions like adjustable louvers, green walls, and strategic landscaping are integral to the house's design, offering shade and privacy while minimizing the urban heat island effect. A reflective pool adds to the cooling, further reducing the reliance on air conditioning. The use of renewable energy sources and a greywater recycling system for garden irrigation underscore the commitment to sustainability.





Security and Privacy in Design
A Multi-Layered Approach
Grande House addresses urban living challenges with a unique security strategy. A dual-fence system ensures privacy and security, integrating smart alarms and anti-climb features. This approach not only deters unauthorized access but also preserves the aesthetic appeal of the property.


Fire Safety and Evacuation
The layout of Grande House prioritizes the safety of its inhabitants. Each room is designed for quick evacuation, with direct access to outdoor spaces. This thoughtful planning ensures a swift and safe exit in emergency situations, demonstrating a comprehensive approach to security and safety.


Integrating with the Local Ecosystem
Enhancing Biodiversity
The project's landscaping strategy focuses on enhancing local biodiversity. By removing invasive species and introducing native flora, the Grande House contributes to the ecological balance of the area. The inclusion of bat and bird boxes further supports local wildlife, making the property a haven for biodiversity.


Supporting the Local Economy
By employing local craftsmen and using regionally sourced materials such as wood, natural stone, and travertine, Grande House not only sustains the local economy but also ensures that the construction process is environmentally responsible. This approach fosters a strong sense of community and regional identity.
Grande House by Patio Livity represents the future of sustainable living in Indonesia. Through its innovative use of technology, commitment to green building practices, and thoughtful integration with the local environment, the project offers a blueprint for eco-friendly homes that do not compromise on luxury or security. As the demand for sustainable living spaces grows, Grande House stands as a benchmark for innovative sustainable homes in Indonesia, offering insights and inspiration for future projects.







All photographs are work of KIE
Popular Articles
Popular articles from the community
Flamboyant House by Juliana Camargo + Prumo Projetos
Modern Brazilian house integrating existing tree, pool, and volumes with glass, wood, and transitional spaces blending interior, exterior, and landscape seamlessly.
Solar Steam: A Climate-Responsive Architecture That Redefines the Monument
A climate-responsive memorial architecture that transforms heat, decay, and time into a living system reflecting humanity’s ecological impact.
On the Brooks House by Monsoon Collective – A Contemporary Kerala Home Rooted in Tradition
Kerala home blending tradition and modernity with water-inspired design, brick architecture, courtyard planning, and sustainable rainwater harvesting strategies.
Atelier Macri Concept Store Interior Design by CASE-REAL
Atelier Macri store features a "ko" counter, walnut wood details, cork displays, blending retail, gallery, and seamless customer experiences.
Similar Reads
You might also enjoy these articles
Top 15 Architecture Competitions to Enter in 2026
From student-friendly idea competitions to prestigious international awards, here are the best architecture competitions open for entries in 2026. Updated regularly.
DIY & Engineering in Computational Design : Enter the BeeGraphy Design Awards
Showcase Your Creativity with Computational Design and Open Source Projects

Innovative Design Solutions: Award-Winning Projects from Recent Architecture Competitions
Exploring award-winning architectural projects shaping the future of design, sustainability, and community.
Explore Architecture Competitions
Discover active competitions in this discipline
The International Standard for Design Portfolios
The Global Benchmark for Architecture Dissertation Awards
The Global Benchmark for Graduation Excellence
Challenge to reimagine the Iron Throne
Comments (0)
Please login or sign up to add comments
No comments yet. Be the first to comment!