AMS - LINK COMMUNITY CENTER
Explores AMS - LINK Community Center in Amsterdam, fostering international student-local interactions through innovative design.
Linking Communities: The AMS - LINK COMMUNITY CENTER created by Jeongsook Kimaims, DASOM PARK, Shortlisted entry of Overseas Oasis to connect diverse communities in Amsterdam by leveraging the city’s iconic canal and bridge infrastructure. The project proposes a new canal and link bridge to encourage interactions among locals, international students, and various nationalities, fostering a sense of community and cultural exchange.

Urban Context
Amsterdam's Unique Urbanity: Amsterdam is characterized by its extensive canal system, historic architecture, and multicultural population. The city faces challenges with housing due to a high population density and a significant number of international students. The AMS - LINK COMMUNITY CENTER addresses these issues by providing accommodation and communal spaces that encourage social interaction.

Site Plan
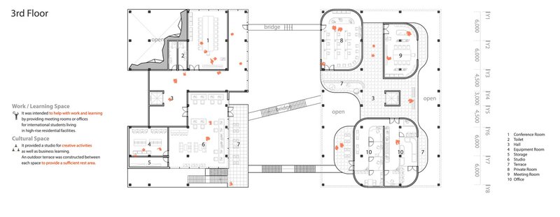
Work/Learning Spaces: Includes large and small business and learning facilities for international students.
Dynamic Spaces: Active program spaces for both international students and locals to enjoy together.
Common Spaces: Resting places and facilities for both students and locals, including bicycle storage.
Greenery: Integrated green spaces to enhance the urban environment.
Traffic and Surrounding Facilities: Incorporates a free bridge connecting divided buildings, facilitating movement and interaction.

Architectural Features
Vertical and Horizontal Connectivity: The design integrates vertical and horizontal movement within the buildings, enhancing the spatial experience and promoting fluid interactions. The two buildings are connected by a bridge, symbolizing the connection between different cultures and communities.
Dynamic Spaces: Features such as climbing walls and net farms are included to provide active and engaging environments for users.
Cultural and Common Spaces: The center includes museums, galleries, cafes, restaurants, and shops that reflect both local and international cultures. These spaces are designed to promote cultural exchange and community building.

Design Philosophy
Integration with Local Culture: The design reflects Amsterdam’s cultural and urban characteristics, such as its canal system and alley culture. Open terraces and water spaces create an inviting atmosphere for both locals and international students.

Community Building: By providing spaces where international students can work part-time, the center supports their financial needs while integrating them into the local economy. The design includes commercial facilities like cafes, restaurants, bookstores, and flea markets.

Inclusivity: The design creates an inclusive environment where people from various nationalities can interact, learn, and share experiences. The open spaces and fluid connections between buildings foster a welcoming and dynamic community atmosphere.

Programmatic Features
Work/Learning Spaces: Meeting rooms, offices, coworking spaces, study rooms, and private rooms.
Dynamic Spaces: Climbing areas, net farms, and atriums for active engagement.
Common Spaces: Plazas, bookstores, restaurants, cafes, clothing stores, prop shops, and flea markets.
Cultural Spaces: Museums, gift shops, studios, and exhibition halls.
Residential Spaces: Temporary living facilities for international students with options for one or two-person accommodations.

Section Design
Vertical Movement: The design features free vertical and horizontal movement, with diverse building heights creating an interesting spatial dynamic. Stairs connect different floors, adding to the architectural complexity.
Bridge Design: The bridge connecting the two buildings incorporates both vertical and horizontal lines, enhancing the aesthetic and functional unity of the structure.
The AMS - LINK COMMUNITY CENTER is a visionary project that addresses the needs of international students in Amsterdam while promoting cultural exchange and community interaction. By integrating the city’s unique urban elements and providing a variety of dynamic, cultural, and common spaces, the project creates a vibrant and inclusive environment for all users.

Popular Articles
Popular articles from the community
Paco Oria Estudio Rebuilds a 1949 Valencian Town House Around Timber, Terracotta, and a New Interior Patio
In Godella, Spain, a semi-detached house from the postwar era is stripped to its party walls and rebuilt with wood and ceramics.
BICA Arquitectos Buries a Coastal Home in a Man-Made Dune on Portugal's Tróia Peninsula
A 300-square-meter house of timber, sand mortar, and travertine dissolves into the dune landscape it helped regenerate on the Alentejo coast.
1-1 Architects Builds a Nagoya House and Office from Decades of Stockpiled Timber
A 69-square-meter tower in dense residential Nagoya transforms surplus lumber into a home and workplace for a construction company.
H&P Architects Stack a Vertical River of Brick and Greenery in Hanoi
A perforated terracotta tower in Dong Anh channels water, light, and air through eight staggered levels of domestic life.
Similar Reads
You might also enjoy these articles
317studio Turns an 87 m² Classroom into a Forest Clearing for Scouts in New Taipei City
A rope canopy, student-made specimens, and campfire geometry replace rows of desks in this Scouting classroom in Xizhi District.
24 7 Arquitetura Builds a Timber Pavilion as a Family's First Act on a 5,000 m² Brazilian Plot
In Jaguariúna, a prefabricated glulam house nestles among mature trees as the opening move of a larger residential masterplan.
1+1>2 Architects Build a School from 900 Blocks of Hmong Stone on Vietnam's Rocky Plateau
On a barren valley in Ha Giang province, a community quarried its own stone to raise a kindergarten and primary school rooted in Hmong identity.
100A Associates Builds a Volcanic Stone Retreat on Jeju Island Rooted in Ritual and Restraint
Watarstay [Wa:Tar] in Bongseong-ri channels Jeju's basalt, reed, and hemp into a 150 m² hospitality space shaped by contemplation.
Explore Architecture Competitions
Discover active competitions in this discipline
The International Standard for Design Portfolios
The Global Benchmark for Architecture Dissertation Awards
The Global Benchmark for Graduation Excellence
Challenge to design locus for the upliftment of human rights
Comments (0)
Please login or sign up to add comments
No comments yet. Be the first to comment!