Gea House by Studio AM11, Monterrey, Mexico
A cantilevered concrete house blending openness and nature, creating a floating architectural experience defined by light, views, and tranquility.
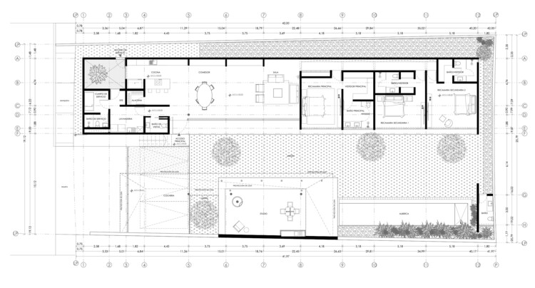
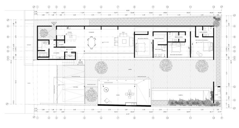
Gea House by Studio AM11 is a striking residential project located at the foothills of Cerro de la Silla in Monterrey, Mexico. Designed as a tranquil retreat from the intensity of urban life, the house embodies a sense of lightness and suspension, an architectural expression that evokes the sensation of floating within the landscape.


Set on a generous 900 m² plot with a built area of approximately 420 m², the project responds directly to its natural surroundings. The dramatic topography and scenic views of the iconic mountain become integral to the design, shaping both the orientation and spatial experience of the house.


At the core of the concept is a solid concrete monolith articulated through bold cantilevers. These projecting volumes appear to hover above the ground, creating a dynamic interplay between mass and void. The visual effect of suspension not only defines the architectural identity but also enhances the perception of lightness, despite the use of heavy materials.


Transparency plays an equally important role. Large floor-to-ceiling openings dissolve the boundaries between interior and exterior, allowing natural light to flood the living spaces while framing expansive views of the surrounding landscape. This openness fosters a continuous dialogue with nature, reinforcing a sense of calm and connection.


The spatial organization emphasizes fluidity and openness. Rather than relying on rigid partitions, the design uses subtle visual cues to define different zones within the house. This approach maximizes spatial continuity, creating an environment that feels expansive and interconnected.


Materiality is carefully curated to harmonize with the natural context. Exposed concrete forms the primary structural and aesthetic language, complemented by warm wood and natural stone. This restrained palette of neutral tones and textures enhances the building’s integration with its surroundings, allowing it to blend seamlessly into the landscape.



A key design objective was to ensure that all areas, both social and private, maintain a direct relationship with the outdoors. Gardens, terraces, and open spaces are woven into the architecture, encouraging interaction with nature and enhancing the overall living experience. This strategy not only improves natural ventilation and daylighting but also expands the perceived boundaries of the home.


The interplay of light, shadow, and material creates a constantly evolving atmosphere throughout the day. As sunlight moves across the concrete surfaces and through the large openings, the house transforms, offering a dynamic yet serene environment.


Ultimately, Gea House is an exploration of balance: between solidity and lightness, openness and privacy, architecture and nature. Studio AM11 has crafted a residence that is both bold and calm, where contemporary design principles meet the timeless qualities of landscape and material.



The result is a home that transcends its physical form, offering an experience defined by tranquility, harmony, and the poetic sensation of floating within space.


Popular Articles
Popular articles from the community
Alton Cliff House: A Harmonious Retreat by f2a Architecture in Lake Country, Canada
Alton Cliff House blends corten steel, prefabrication, and sustainable design, creating a luxurious, energy-efficient retreat perched on Canadian cliffs.
Atelier Macri Concept Store Interior Design by CASE-REAL
Atelier Macri store features a "ko" counter, walnut wood details, cork displays, blending retail, gallery, and seamless customer experiences.
Gads Hill Early Learning Center by JGMA: Adaptive Reuse Shaping Community-Focused Educational Architecture
Adaptive reuse transforms fragmented structure into vibrant early learning center with playful façade, natural light, and community-focused sustainable design.
Similar Reads
You might also enjoy these articles
Free Architecture Competitions You Can Enter Right Now
No entry fees, real prizes. Here are the best free architecture competitions open for submissions in 2026.
Top 15 Architecture Competitions to Enter in 2026
From student-friendly idea competitions to prestigious international awards, here are the best architecture competitions open for entries in 2026. Updated regularly.
DIY & Engineering in Computational Design : Enter the BeeGraphy Design Awards
Showcase Your Creativity with Computational Design and Open Source Projects

Innovative Design Solutions: Award-Winning Projects from Recent Architecture Competitions
Exploring award-winning architectural projects shaping the future of design, sustainability, and community.
Explore Architecture Competitions
Discover active competitions in this discipline
The International Standard for Design Portfolios
The Global Benchmark for Architecture Dissertation Awards
The Global Benchmark for Graduation Excellence
Challenge to reimagine the Iron Throne
Comments (0)
Please login or sign up to add comments
No comments yet. Be the first to comment!