Healthcare Architecture Design Trends 2024: UChicago Medicine Crown Point by Perkins&Will
Healthcare architecture design trends in 2024 showcase patient-centric spaces like UChicago Medicine Crown Point, combining innovation and nature.
Introduction to Healthcare Architecture Design Trends 2024
In the evolving landscape of healthcare architecture design trends in 2024, the UChicago Medicine Crown Point facility in Indiana stands as a prime example of innovative, patient-focused design. Designed by Perkins&Will, this cutting-edge multispecialty care center and micro-hospital redefines how medical environments serve both patients and their communities. Completed in 2024, the 132,000-square-foot facility merges advanced clinical care with a healing architectural environment, setting a new benchmark in healthcare design.

Bridging the Gap in Healthcare Access Through Architecture
One of the most significant healthcare architecture design trends in 2024 is the decentralization of major medical facilities to better serve rural and underserved communities. UChicago Medicine Crown Point exemplifies this shift. Located in Northwest Indiana, the facility addresses the healthcare gap for patients previously traveling long distances for specialized care.

Prior to the construction of this facility, 15% of residents in the region were forced to seek medical services outside their area. Perkins&Will designed the Crown Point center to alleviate this burden by offering comprehensive services under one roof. The architectural solution prioritizes accessibility, efficiency, and patient comfort—key considerations shaping healthcare architecture design trends in 2024.

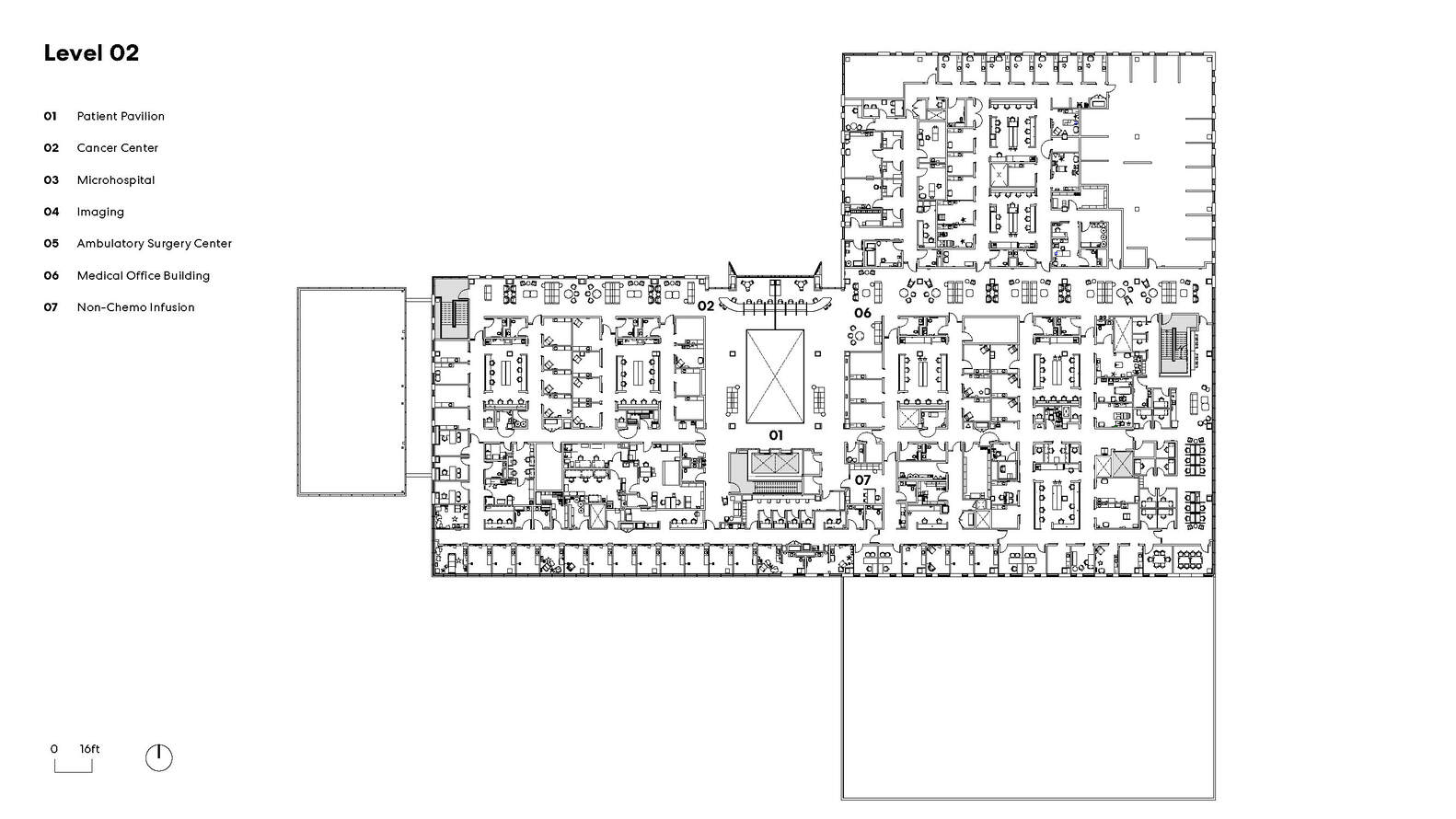
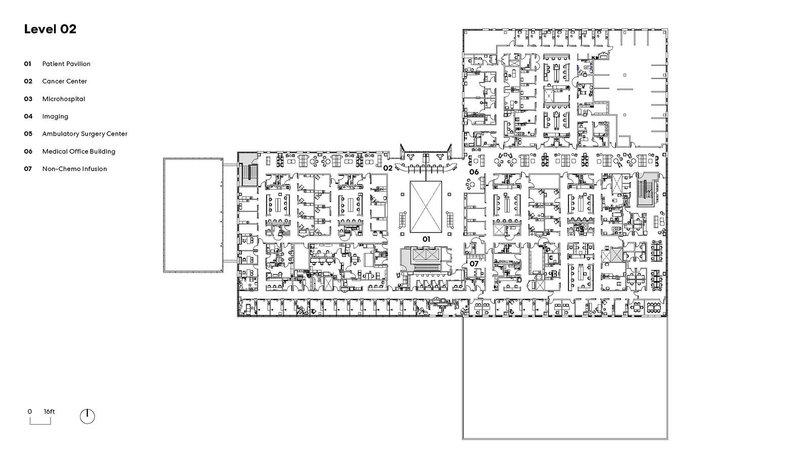
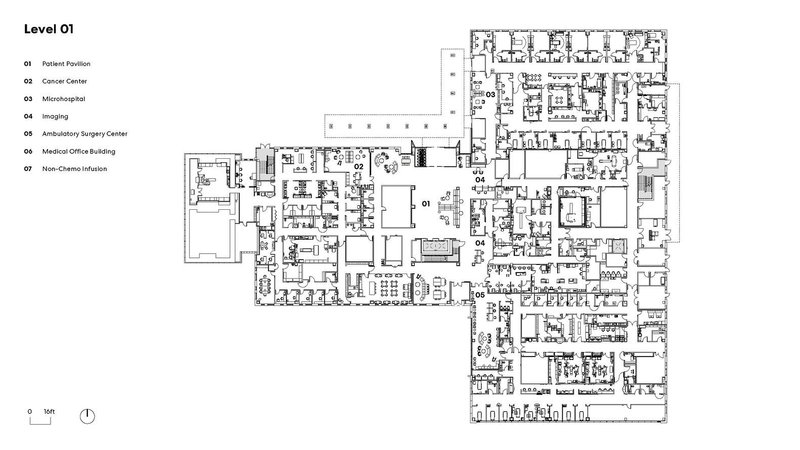
Multispecialty Care Under One Roof
The UChicago Medicine Crown Point project introduces an innovative approach to space planning within healthcare architecture. Combining a micro-hospital with an advanced outpatient care center, the facility consolidates a diverse range of medical services into a streamlined structure. The design includes an emergency department, an imaging center, an ambulatory surgery unit, a cancer treatment center, and outpatient specialty clinics.


A key healthcare architecture design trend in 2024 is the blurring of lines between inpatient and outpatient care. This facility exemplifies that evolution by housing an eight-bed short-stay inpatient unit alongside outpatient departments. The result is a versatile environment capable of adapting to both urgent and ongoing care, improving operational efficiency and patient experience.


Nature-Inspired Design Enhancing Healing Environments
Healthcare architecture design trends in 2024 increasingly emphasize biophilic design principles to support patient well-being. UChicago Medicine Crown Point demonstrates this approach by drawing inspiration from the Indiana landscape. The exterior features a precast concrete envelope that echoes the natural tones and textures of local limestone, while native prairie grasses surround the building, fostering a sense of tranquility.

Inside, natural light floods the interiors, creating a calm and welcoming environment for patients and visitors. The two-story atrium serves as a central gathering point, featuring floor-to-ceiling glass, rift white oak finishes, and Indiana limestone cladding. This material palette connects the interior spaces to the building’s prairie setting, enhancing the restorative impact of the architecture.

Patient-Centered Wayfinding and Visual Comfort
An emerging focus in healthcare architecture design trends in 2024 is improving patient wayfinding through visual storytelling and color psychology. At Crown Point, Perkins&Will developed a wayfinding system inspired by the region’s ecological diversity. Distinct color palettes and graphics reflect local wildflowers, butterflies, trees, and Lake Michigan dunes, guiding patients intuitively through the facility.

The first-floor oncology waiting area exemplifies this thoughtful design approach. A wave-pattern screen diffuses light, balancing privacy with openness, while a limestone elevator core creates a grounding focal point. Overhead, a suspended cloud-like art installation commissioned by UChicago Medicine reinforces the sense of serenity and uplifts patients navigating their care journey.

Sustainability and Longevity in Healthcare Construction
Sustainability continues to shape healthcare architecture design trends in 2024, with long-lasting materials and energy-efficient systems becoming standard practice. At Crown Point, the precast concrete façade not only references local geology but also ensures durability and thermal efficiency. The integration of daylighting strategies reduces energy consumption, while the landscape design incorporates resilient native vegetation that thrives in the Midwest climate.

These architectural choices align with the broader industry shift toward environmentally conscious healthcare infrastructure. As healthcare systems expand into new regions, designs that harmonize with local ecosystems and minimize operational footprints represent the future of responsible healthcare architecture.

The Role of Community Integration in Modern Healthcare Facilities
Community engagement is emerging as a defining factor in healthcare architecture design trends in 2024. The UChicago Medicine Crown Point facility functions as more than a medical hub; it fosters a sense of belonging within the local community. Outdoor green spaces and accessible pathways invite residents to interact with the landscape, promoting health beyond clinical settings.
The building’s transparent entry and welcoming interiors signal openness and inclusion. By reflecting the textures and colors of Indiana’s natural environment, the architecture resonates with the cultural identity of the region. This emphasis on community integration underscores the growing recognition that healthcare spaces must serve as social and healing environments.
Setting the Standard for Healthcare Architecture Design Trends 2024
The UChicago Medicine Crown Point facility by Perkins&Will exemplifies the leading healthcare architecture design trends in 2024. By combining patient-centered planning, biophilic principles, sustainable construction, and community integration, the project redefines the role of healthcare spaces. As the industry moves towards more adaptive, human-centric designs, Crown Point stands as a beacon of how architecture can elevate the healthcare experience while addressing regional disparities.

Healthcare architecture in 2024 is no longer just about functionality—it is about creating environments that heal, empower, and connect. The UChicago Medicine Crown Point project serves as an architectural blueprint for future healthcare developments, demonstrating that innovative design can bridge the gap between clinical excellence and human comfort.

All photographs are works of Mark Herboth
Popular Articles
Popular articles from the community
Louis Malle Cinema: A Limestone Cultural Landmark Revitalizing Community Life in Prayssac
Limestone cinema extension with public forecourt, blending heritage and modern design to create flexible cultural spaces and strengthen community interaction.
Treehouse Apartment: A Warm Timber Interior Blending Craft, Play, and Contemporary Living
Warm timber apartment with integrated treehouse, combining natural materials, craftsmanship, and playful design to create a flexible, family-oriented living environment.
An Miên Lumière Cafe by xưởng xép, Ho Chi Minh City, Vietnam
An industrial-inspired café where layered steel and warm light create a dynamic, immersive environment shaped by reflection, depth, and perception.
Solar Steam: A Climate-Responsive Architecture That Redefines the Monument
A climate-responsive memorial architecture that transforms heat, decay, and time into a living system reflecting humanity’s ecological impact.
Similar Reads
You might also enjoy these articles
Top 15 Architecture Competitions to Enter in 2026
From student-friendly idea competitions to prestigious international awards, here are the best architecture competitions open for entries in 2026. Updated regularly.
DIY & Engineering in Computational Design : Enter the BeeGraphy Design Awards
Showcase Your Creativity with Computational Design and Open Source Projects

Innovative Design Solutions: Award-Winning Projects from Recent Architecture Competitions
Exploring award-winning architectural projects shaping the future of design, sustainability, and community.
Explore Architecture Competitions
Discover active competitions in this discipline
The International Standard for Design Portfolios
The Global Benchmark for Architecture Dissertation Awards
The Global Benchmark for Graduation Excellence
Challenge to reimagine the Iron Throne
Comments (0)
Please login or sign up to add comments
No comments yet. Be the first to comment!