Industrial Brutalist House: The Industrial Escape House by Studio Parisi Architects
The Industrial Escape House redefines industrial brutalist houses, integrating raw materials, passive design, and lush greenery for a striking yet serene home.
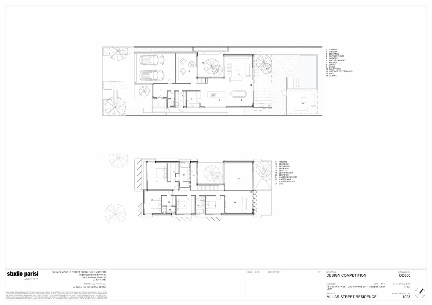
The Industrial Escape House, designed by Studio Parisi Architects, is a bold industrial brutalist house that juxtaposes raw materials with lush greenery, creating a striking balance between built form and nature. Situated in a suburban Australian neighborhood, this residence redefines conventional housing typologies by embracing industrial aesthetics, minimalist brutalism, and seamless indoor-outdoor connections.



A Contemporary Industrial Retreat
This home stands as a statement of contemporary industrial architecture, using raw concrete, exposed brick, steel, and timber to craft a dwelling that feels both monumental and inviting. The robust brutalist materials, often associated with urban and industrial settings, are softened by a central northern courtyard that introduces natural light, ventilation, and greenery into the living spaces. This harmonious interplay of textures and contrasts defines the home's unique identity.



Spatial Planning and Architectural Intent
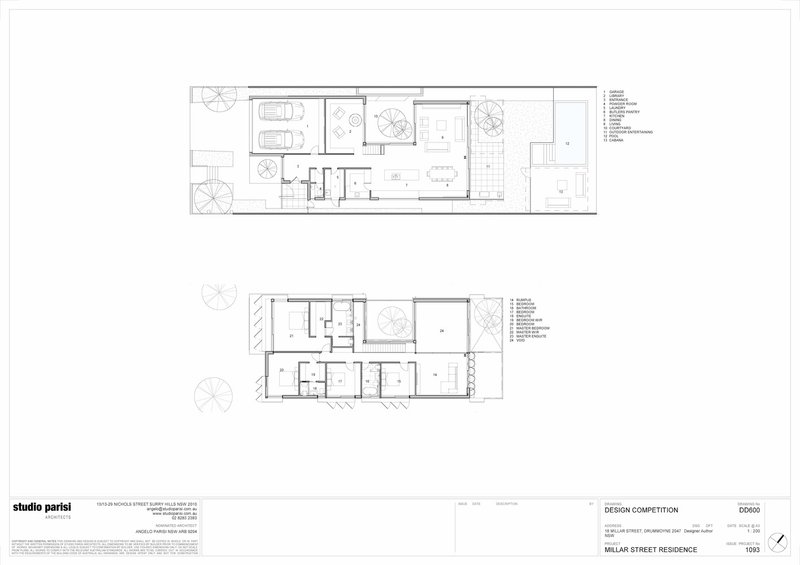
Designed across 300 square meters, the house is structured to create a private retreat within its suburban setting. The central courtyard serves as the focal point, allowing the surrounding rooms to engage with the outdoors while ensuring privacy from neighboring properties. The layout prioritizes spatial fluidity, with large openings, sliding doors, and continuous visual links between indoor and outdoor spaces.


The living area is an open-plan volume where exposed concrete ceilings, timber-clad walls, and steel-framed windows create a space that is both raw and refined. The kitchen, featuring a brick-clad island and black steel finishes, reinforces the industrial aesthetic while maintaining a warm, functional character. The staircase, crafted from steel and timber, adds a sculptural element, leading to the private upper-level spaces.


Materiality and the Brutalist Influence
The design draws heavily from brutalist principles, emphasizing honest materials, geometric forms, and an emphasis on function over ornamentation. The use of unfinished concrete, exposed steel beams, and natural wood creates an environment that feels both solid and dynamic. These elements work together to achieve a timeless, low-maintenance, and thermally efficient home.


The house also integrates passive design strategies, such as cross-ventilation, thermal mass cooling, and strategically placed windows, ensuring a comfortable indoor environment without excessive reliance on artificial cooling or heating. The courtyard not only enhances natural airflow but also serves as a tranquil green escape, softening the rawness of the industrial materials.


Blending Brutalism with Nature
While brutalist homes are often perceived as heavy and imposing, the Industrial Escape House challenges this notion by embracing landscape integration. The lush garden, courtyard planting, and use of natural timber add warmth and visual softness, fostering an atmosphere that feels livable and serene.


This project exemplifies how an industrial brutalist house can balance raw materiality with natural elements, creating a home that is both bold and welcoming. The interplay of light, shadow, texture, and greenery results in a residence that offers privacy, openness, and a deep connection to its environment.


Redefining Residential Brutalism
By combining brutalist aesthetics with contemporary residential needs, the Industrial Escape House showcases a new way of experiencing industrial architecture in a suburban setting. The careful articulation of space, material, and landscape ensures that the home remains functional, timeless, and deeply connected to nature.
This project stands as a testament to the evolving nature of brutalist architecture, proving that it can be both powerful and inviting, raw and refined, industrial and intimate.

All Photographs are works of THAT Photographer
Popular Articles
Popular articles from the community
Atelier Macri Concept Store Interior Design by CASE-REAL
Atelier Macri store features a "ko" counter, walnut wood details, cork displays, blending retail, gallery, and seamless customer experiences.
The Ken Roberts Memorial Delineation Competition (Krob)
As the most senior architectural drawing competition currently in operation anywhere in the world, it draws hundreds of entries each year, awarding the very best submissions in a series of medium-based categories.
Solar Steam: A Climate-Responsive Architecture That Redefines the Monument
A climate-responsive memorial architecture that transforms heat, decay, and time into a living system reflecting humanity’s ecological impact.
Treehouse Apartment: A Warm Timber Interior Blending Craft, Play, and Contemporary Living
Warm timber apartment with integrated treehouse, combining natural materials, craftsmanship, and playful design to create a flexible, family-oriented living environment.
Similar Reads
You might also enjoy these articles
The Ken Roberts Memorial Delineation Competition (Krob)
As the most senior architectural drawing competition currently in operation anywhere in the world, it draws hundreds of entries each year, awarding the very best submissions in a series of medium-based categories.
Waterfront Redevelopment and Urban Revitalization in Mumbai: Forging a New Dawn for Darukhana
A transformative waterfront redevelopment project reimagining Darukhana’s shipbreaking heritage into an inclusive urban future.
OUT-OF-MAP: A Call for Postcards on Feminist Narratives of Public Space
Rhizoma Design and Research Lab invites artists, designers, architects, researchers, and students to reflect on how feminist perspectives can reshape public space. Selected works will be exhibited in Barcelona, October 2026. Submissions open until 15 April 2026.
Documentation Work on Buddhist Wooden Temple
Architectural syncretism and cultural hybridity: A comparative study of the Buddhist temples in Chattogram Hill tracks
Explore Architecture Competitions
Discover active competitions in this discipline
The International Standard for Design Portfolios
The Global Benchmark for Architecture Dissertation Awards
The Global Benchmark for Graduation Excellence
Challenge to reimagine the Iron Throne
Comments (0)
Please login or sign up to add comments
No comments yet. Be the first to comment!