Monolithic Concrete House Design Near Vienna by Balissat Kaçani + Jann Erhard
A striking monolithic concrete house near Vienna blends raw materiality, spatial complexity, and private garden living amidst railway infrastructure.
In Baden bei Wien, Austria, architects Balissat Kaçani and Jann Erhard have designed an extraordinary monolithic concrete house that redefines the relationship between built form, garden, and urban infrastructure. Positioned between a historic villa garden and the tracks of the Baden railway, the house transforms a constrained and exposed site into a private, introverted living space.



The Site and Conceptual Approach
The home is strategically located at the end of a private path that runs parallel to the tram tracks and through tall, old trees. It occupies what was once part of a large villa garden, introducing a striking architectural statement while preserving intimacy and privacy. The design mediates between two contrasting worlds: the dynamic railway infrastructure on one side and a serene enclosed garden on the other.

This garden, accessible only through the house, becomes a protected counterpart to the noise and movement of the railway. The architecture acts as both a physical and visual shield, enhancing the residents’ sense of seclusion.



Monolithic Concrete Construction
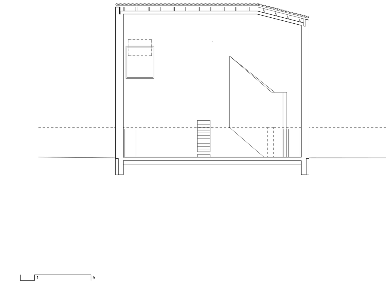
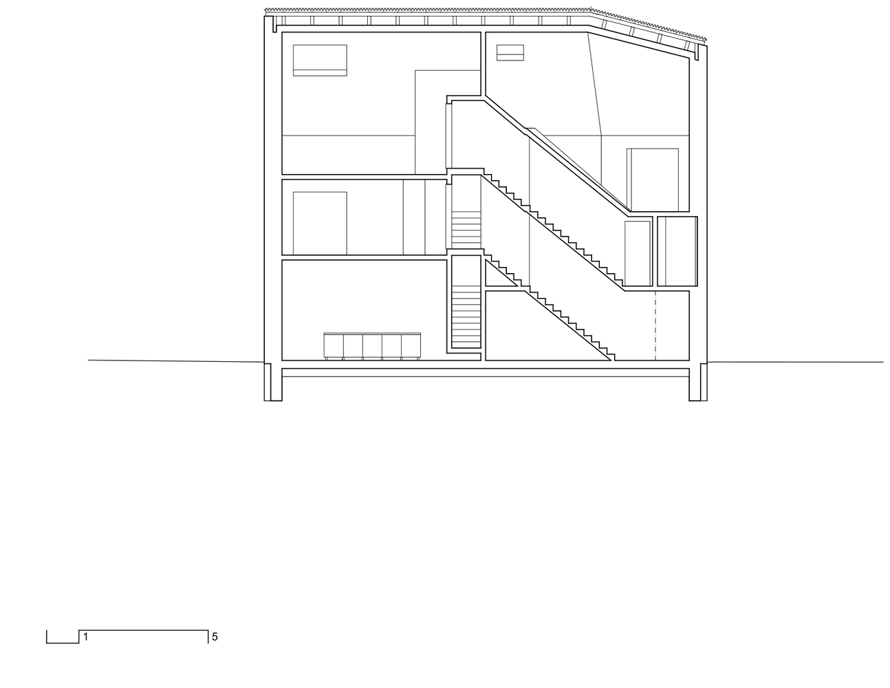
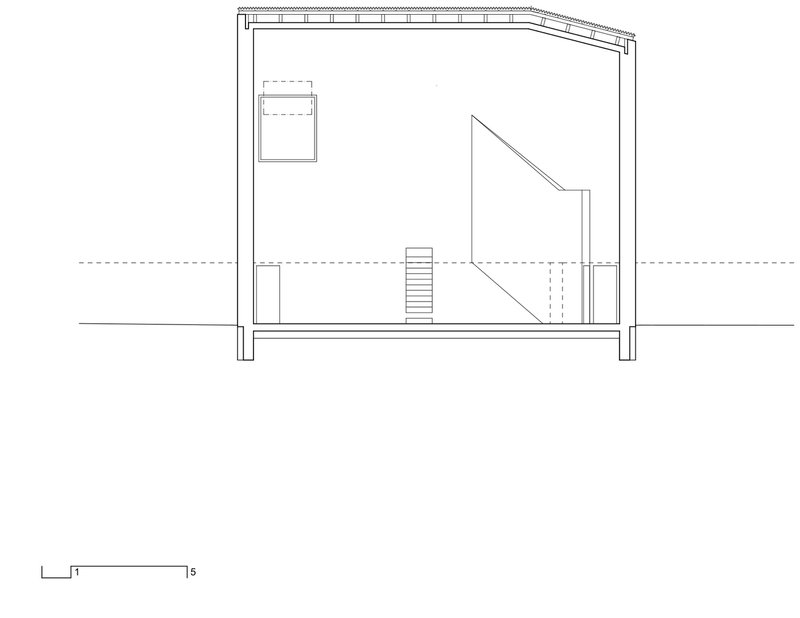
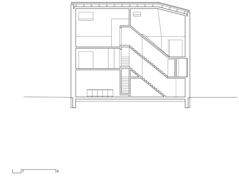
The house’s defining feature is its 55 cm thick insulating concrete outer wall, which is the same inside and out. This archaic, monolithic approach uses no layered finishes, creating a pure and raw expression of material. All interior walls and ceilings are 15 cm thick reinforced concrete, making the structure a thermally activated mass.


Heating and cooling pipes are integrated directly into the floor slabs, ensuring year-round temperature regulation without additional structural layers. The design embraces diffusion-open construction, promoting natural breathability while offering durability and a sculptural presence.


Spatial Organization
The plan unfolds in two distinct halves. On the side facing away from the tracks, a dramatic interior void connects to the garden. This soaring space measures over 10 meters in height, nearly 12 meters in length, and just over 3 meters in width, blurring the boundary between interior and exterior.
Two staircases—one central and one peripheral—spiral through the home like a double helix, providing access to the second half of the house where six equally sized rooms line up along the railway side. Each room features a large fixed north-facing window toward the tracks and a quieter ventilation door facing the opposite side.


The varying lengths of the staircases subtly adjust the heights of the rooms, providing variety within their otherwise identical footprints. The result is a dynamic interplay between repetition and difference.


Fragmentation and Wholeness
While the two staircases lead to separate parts of the house, the spaces are designed so that all sides and levels remain visually connected. This creates a tension between fragmentation and unity, allowing occupants to feel both separation and cohesion simultaneously. The design encourages flexible use of the neutral rooms, adapting to diverse and evolving living scenarios.


Material Honesty and Architectural Character
This monolithic concrete house design champions material authenticity. The raw concrete surfaces are left exposed, expressing the building’s structural logic and giving it a timeless, grounded quality. Large windows, controlled openings, and the strategic folding of the garden wall into the building establish a dialogue between openness and enclosure.

The garden wall not only defines the entrance but also merges the exterior landscaping with the architectural form, reinforcing the home’s strong conceptual link between nature and built environment.

The House near Vienna by Balissat Kaçani and Jann Erhard is a remarkable study in monolithic concrete architecture, spatial interweaving, and the coexistence of privacy with contextual openness. By embracing raw materiality and integrating the garden as an intrinsic architectural element, the project offers a forward-thinking response to site constraints while creating a timeless, adaptable home.


All Photographs are works of Willem Pab
Popular Articles
Popular articles from the community
Free Architecture Competitions You Can Enter Right Now
No entry fees, real prizes. Here are the best free architecture competitions open for submissions in 2026.
Split House: A Compact Urban Home Blending Privacy, Light, and Flexible Living in Japan
Compact Japanese home featuring DOMA space, flexible café potential, passive lighting, privacy zoning, and sustainable urban living design.
20 Most Popular Commercial Architecture Projects of 2025
From sustainable market concepts to heritage factories, the commercial buildings and proposals that drew the most attention on uni.xyz this year.
Similar Reads
You might also enjoy these articles
20 Most Popular Commercial Architecture Projects of 2025
From sustainable market concepts to heritage factories, the commercial buildings and proposals that drew the most attention on uni.xyz this year.
Free Architecture Competitions You Can Enter Right Now
No entry fees, real prizes. Here are the best free architecture competitions open for submissions in 2026.
Top 15 Architecture Competitions to Enter in 2026
From student-friendly idea competitions to prestigious international awards, here are the best architecture competitions open for entries in 2026. Updated regularly.
DIY & Engineering in Computational Design : Enter the BeeGraphy Design Awards
Showcase Your Creativity with Computational Design and Open Source Projects
Explore Architecture Competitions
Discover active competitions in this discipline
The International Standard for Design Portfolios
The Global Benchmark for Architecture Dissertation Awards
The Global Benchmark for Graduation Excellence
Challenge to reimagine the Iron Throne
Comments (0)
Please login or sign up to add comments
No comments yet. Be the first to comment!