Reimagining Architectural Education and Practice: A Way Forward with INTERSECT
INTERSECT: Shaping Architects, Building Futures
Architectural education has long been the cornerstone of shaping the built environment, but as the demands of the industry evolve, so must the frameworks that prepare young architects to lead. The project INTERSECT by Puneet Nilesh—shortlisted for the UnIATA '24 Award—offers a visionary reimagining of architectural education and practice. It bridges the critical gap between academic learning and the practical, hands-on experience demanded by the industry, delivering a blueprint for a future-ready architecture profession.
This article explores the philosophy behind INTERSECT, its innovative design strategies, and its potential to transform architectural education in India and beyond.

The State of Architectural Education in India
India's architectural education system faces a myriad of challenges that restrict its ability to produce industry-ready graduates. The growing concern is whether current pedagogical methods are sufficient to prepare architects for an era defined by technological advances, sustainability demands, and rapid urbanization.
Key issues include:
A lack of practical exposure and hands-on experience in real-world design challenges.
A disconnect between education and market readiness, with freshly graduated professionals often requiring extensive re-skilling before joining the workforce.
Limited access to cutting-edge technology such as digital fabrication tools, GIS systems, and energy simulation software.
A curriculum heavily weighted toward theory, often at the expense of holistic growth, including creative problem-solving, technical acumen, and interdisciplinary collaboration.
These systemic shortcomings highlight the need for a paradigm shift in how architecture is taught and practiced.

A New Vision for Architectural Education and Practice
The INTERSECT project, proposed by Puneet Nilesh, addresses these concerns through a multi-faceted, research-driven approach. At its core, INTERSECT proposes an integrated architectural complex that blends education, experimentation, collaboration, and professional practice within a unified framework.
Philosophy and Objectives
INTERSECT aims to:
Bridge the gap between academia and practice, creating a seamless transition from education to professional life.
Foster hands-on learning by integrating real-world projects, construction techniques, and research directly into the curriculum.
Promote collaboration between stakeholders—students, professionals, academicians, and public authorities—to develop solutions for pressing urban and societal challenges.
Serve as a living laboratory for innovation, sustainability, and technological experimentation, making the campus itself a pedagogical tool.

A Strategic Choice
The Mumbai University Vidyanagari Campus was selected as the site for INTERSECT due to its central location, accessibility, and alignment with the vision of transforming the campus into a global educational hub.
Site Highlights
Connectivity: Proximity to key transportation hubs, including metro stations, bus stops, and arterial roads, ensures easy access for students, faculty, and visitors.
Integration with Nature: The site's natural topography and existing vegetation are preserved and incorporated into the design, fostering a connection between architecture and the environment.
Synergy with Existing Facilities: Adjacency to the university's athletic track, sports facilities, and academic buildings enables resource sharing and encourages interdisciplinary collaboration.

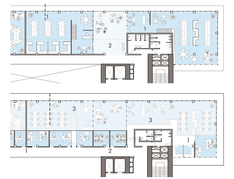
Design Development: A Pedagogy of Spaces
The design of INTERSECT exemplifies the philosophy of learning through doing, seeing, and interacting. Each space is crafted to facilitate a specific mode of learning while fostering collaboration and innovation.
Key Design Features
The INTERSECT complex reimagines spaces for architectural education and practice by incorporating dynamic, flexible, and technology-driven environments. The design prioritizes adaptability and innovation to cater to diverse needs, ensuring students and professionals can thrive in a versatile learning ecosystem.
Dynamic learning spaces form the backbone of the complex, offering a variety of environments tailored for lectures, workshops, critiques, and hands-on experimentation. Modular classrooms can be reconfigured to suit evolving pedagogical approaches, while outdoor critique zones provide open-air settings that foster a culture of critical thinking. Dedicated workshops and laboratories, equipped for material testing, digital fabrication, climatology, and model-making, create immersive spaces for exploration and innovation.
Technology integration plays a pivotal role in the project, transforming the complex into a living showcase of advanced construction and architectural systems. Structural innovations, including steel, timber, and reinforced concrete construction techniques, are prominently displayed. Energy-efficient technologies, such as passive cooling systems, renewable energy sources, and climate-responsive facades, exemplify sustainable design principles. Additionally, state-of-the-art digital tools like laser-cutting machines, CNC equipment, and 3D printers empower users to experiment and push the boundaries of their craft.

A standout feature of the complex is the multifunctional auditorium, designed with a distinctive waffle-slab structure. This space, equipped with retractable seating and advanced acoustics, serves multiple purposes, from hosting lectures and seminars to functioning as a hands-on teaching tool. Here, students can directly study structural systems and spatial design principles, bridging theory and application.
The third floor of the complex houses the Collaborative Design Cell, an innovative hub fostering synergy between students, faculty, professionals, and local government bodies. This space is dedicated to real-world projects, including urban design initiatives, infrastructure development, and community engagement programs. By enabling collaboration across various stakeholders, the Design Cell ensures that academic work aligns closely with societal needs.
Sustainability is deeply embedded in every aspect of the project. Green spaces and natural ventilation systems reduce reliance on mechanical cooling, creating a more comfortable and energy-efficient environment. Solar panels and energy monitoring systems demonstrate the seamless integration of renewable energy technologies, while water conservation techniques, including rainwater harvesting and treatment plants, further reinforce the commitment to ecological stewardship.

Reimagining Curriculum and Pedagogy
INTERSECT's design goes hand-in-hand with a reimagined curriculum that emphasizes flexibility, innovation, and hands-on learning. The proposed academic framework adopts a modular structure, ensuring a holistic and adaptive educational experience for aspiring architects.
The journey begins with a Foundation Year, offering students a broad-based introduction to essential architectural principles and techniques. This stage builds a strong base in design thinking and technical fundamentals. The Bachelor’s Degree stage focuses on core architectural training while allowing students to specialize in diverse fields, including urban design, sustainability, or computational design. The curriculum culminates in an Integrated Professional Practice year, where internships and live projects ensure graduates are equipped with the skills and experience needed to excel in the industry.

To further enhance the learning experience, the curriculum embraces innovative pedagogical methodologies. A “Learning by Doing” approach emphasizes hands-on workshops and project-based exercises, enabling students to gain practical experience. “Learning by Interaction” encourages collaborative critiques and peer discussions, fostering a culture of teamwork and shared knowledge. Lastly, “Learning by Experimentation” takes center stage in research-focused studios, where students are encouraged to take risks, explore uncharted territories, and develop pioneering solutions.
The Way Forward
INTERSECT is more than a physical structure—it is a manifesto for the future of architectural education. By combining academic rigor with practical exposure, technological advancements, and collaborative problem-solving, it redefines the way architects are trained. It seeks to create not only skilled designers but also critical thinkers and visionary leaders equipped to address societal challenges.

This vision aligns seamlessly with the aspirations of India’s ‘Amrit Kaal,’ as articulated by the Hon’ble Prime Minister, Shri Narendra Modi. This pivotal era represents an opportunity for growth and innovation, and INTERSECT positions itself as a key contributor to this national vision. By empowering students and professionals to engage meaningfully with the pressing issues of our time, the project paves the way for architects to play a vital role in shaping the nation’s development.
INTERSECT’s holistic approach to education and practice sets a new benchmark for architectural institutions worldwide. It underscores the necessity of adapting to the changing demands of the profession and demonstrates that architectural education can—and must—be reimagined to meet the challenges of an ever-evolving world.

Popular Articles
Popular articles from the community
Fifth NRE Jazz Club – De Bever Architecten: Eindhoven’s Revitalized Cultural Hub
Historic gas factory transformed into Fifth NRE Jazz Club blending modern sustainability, jazz culture, dining, and heritage architecture seamlessly.
Split House: A Compact Urban Home Blending Privacy, Light, and Flexible Living in Japan
Compact Japanese home featuring DOMA space, flexible café potential, passive lighting, privacy zoning, and sustainable urban living design.
Gads Hill Early Learning Center by JGMA: Adaptive Reuse Shaping Community-Focused Educational Architecture
Adaptive reuse transforms fragmented structure into vibrant early learning center with playful façade, natural light, and community-focused sustainable design.
Inverted Architecture Installation by Studio Link-Arc: Exploring the Intersection of Architecture and Living Organisms
Inverted Architecture Installation by Studio Link-Arc blends mycelium, sustainability, inverted design, ecological cycles, and urban adaptive architecture in Shenzhen.
Similar Reads
You might also enjoy these articles
Alton Cliff House: A Harmonious Retreat by f2a Architecture in Lake Country, Canada
Alton Cliff House blends corten steel, prefabrication, and sustainable design, creating a luxurious, energy-efficient retreat perched on Canadian cliffs.
The Ken Roberts Memorial Delineation Competition (Krob)
As the most senior architectural drawing competition currently in operation anywhere in the world, it draws hundreds of entries each year, awarding the very best submissions in a series of medium-based categories.
A Contemporary Take on Iranian Residential Architecture
A modern interior design in Mashhad that reinterprets brick, light, and spatial flow to create a warm, contemporary residential architecture.
Franche-Comté Advanced School of Engineering by Dominique Coulon & associés, Besançon
A flexible engineering school immersed in woodland, combining concrete minimalism, adaptable spaces, and natural light to support evolving educational environments.
Explore Architecture Competitions
Discover active competitions in this discipline
The International Standard for Design Portfolios
The Global Benchmark for Architecture Dissertation Awards
The Global Benchmark for Graduation Excellence
Challenge to design public laboratory
Comments (0)
Please login or sign up to add comments
No comments yet. Be the first to comment!