Sompo Museum of Art in Shinjuku,Japan
Explore the artistic and architectural brilliance of Sompo Museum of Art, a cultural landmark in Shinjuku.
Discover the captivating architectural masterpiece that is the Sompo Museum of Art, nestled in the vibrant city of Shinjuku, Japan. Designed by the renowned TAISEI DESIGN Planners Architects & Engineers, this museum stands as a symbol of urban renewal and cultural enrichment. Let's delve into the intricate details of this art landmark.


BackgroundIn 2020, the Seiji Togo Memorial Sompo Japan Nipponkoa Museum of Art underwent a significant relocation to a new site at the foot of the Sompo Japan Head Office Building in Shinjuku. Originally inaugurated in 1976 on the 42nd floor of the head office, the move marked a pivotal moment in the museum's history.



Architectural Features
Design Philosophy
Yasuaki Nakafuji, the lead architect, envisioned the museum not merely as a structure but as a sculptural work of art. Departing from conventional typological forms, the building's exterior mirrors the graceful curves of Seiji Togo's iconic works, creating a memorable and visually striking design.




Urban Renewal and Integration
Situated in the Nishi-Shinjuku area, the museum contributes to the ongoing urban renewal efforts. Addressing the lack of vibrancy at the base of high-rise buildings, the project aligns with the "Nishi-Shinjuku Area Town Development Guidelines." It aims not only to be an art landmark but also a catalyst for a new bustling atmosphere.



Construction Innovation
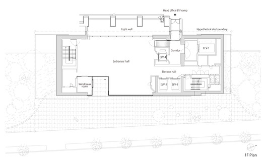
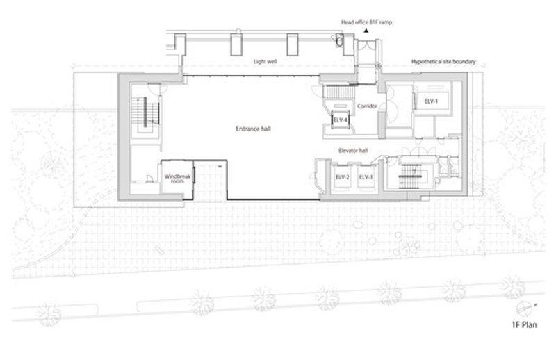
Utilizing a "collective building design system," the architects constructed a freestanding museum adjacent to the headquarters building. This innovative approach allowed for the integration of indoor space from the existing head office building, showcasing a harmonious blend of modernity and adaptability.


Artistic Representation
Van Gogh's InfluenceInspired by Van Gogh's masterpiece, "Sunflowers," the museum's exterior features vertical stripes formed by welding steel plates. This three-dimensional touch results in an ever-changing appearance, creating shades that vary with the season and time of day. The connection between art and architecture becomes apparent through these intricate details.


Openness to the City
Distinguishing itself from traditional museum designs, the Sompo Museum of Art embraces openness. The exhibition floors are dedicated spaces for viewing paintings, while the lower levels seamlessly connect with the city. A large curved glass wall, spanning approximately 16 meters in width and 8 meters in height, establishes a visual link between the interior and the surrounding cityscape.

The Sompo Museum of Art stands as a testament to innovative architectural design, urban renewal, and the seamless integration of art with the city. Yasuaki Nakafuji's vision has materialized into a cultural landmark that not only houses exquisite artworks but also contributes to the dynamic growth of the Nishi-Shinjuku area. Explore the intersection of art and architecture at this extraordinary museum in the heart of Shinjuku, Japan.
All photographs are work of SS Co.,Ltd.,Shinkenchiku-Sha Co.,Ltd.,
Popular Articles
Popular articles from the community
On the Brooks House by Monsoon Collective – A Contemporary Kerala Home Rooted in Tradition
Kerala home blending tradition and modernity with water-inspired design, brick architecture, courtyard planning, and sustainable rainwater harvesting strategies.
Inverted Architecture Installation by Studio Link-Arc: Exploring the Intersection of Architecture and Living Organisms
Inverted Architecture Installation by Studio Link-Arc blends mycelium, sustainability, inverted design, ecological cycles, and urban adaptive architecture in Shenzhen.
A Contemporary Take on Iranian Residential Architecture
A modern interior design in Mashhad that reinterprets brick, light, and spatial flow to create a warm, contemporary residential architecture.
Atelier Macri Concept Store Interior Design by CASE-REAL
Atelier Macri store features a "ko" counter, walnut wood details, cork displays, blending retail, gallery, and seamless customer experiences.
Similar Reads
You might also enjoy these articles
Top 15 Architecture Competitions to Enter in 2026
From student-friendly idea competitions to prestigious international awards, here are the best architecture competitions open for entries in 2026. Updated regularly.
DIY & Engineering in Computational Design : Enter the BeeGraphy Design Awards
Showcase Your Creativity with Computational Design and Open Source Projects

Innovative Design Solutions: Award-Winning Projects from Recent Architecture Competitions
Exploring award-winning architectural projects shaping the future of design, sustainability, and community.
Explore Architecture Competitions
Discover active competitions in this discipline
The International Standard for Design Portfolios
The Global Benchmark for Architecture Dissertation Awards
The Global Benchmark for Graduation Excellence
Challenge to reimagine the Iron Throne
Comments (0)
Please login or sign up to add comments
No comments yet. Be the first to comment!