Sustainable Convention Center Design: A Case Study of the Moscone Center Expansion
This article explores the Moscone Center Expansion, highlighting its sustainable design and LEED Platinum certification in urban architecture.
The recent expansion of the Moscone Center in San Francisco exemplifies cutting-edge sustainable convention center design. Led by the architectural expertise of Skidmore, Owings & Merrill along with Mark Cavagnero Associates, this project showcases how large-scale facilities can operate with a minimal environmental footprint. Completed in 2019, the Moscone Center spans nearly 20 acres and integrates advanced sustainable technologies and design principles, making it a beacon of sustainability in urban architecture.


Architectural Design and Sustainability
Overview of the Design Approach
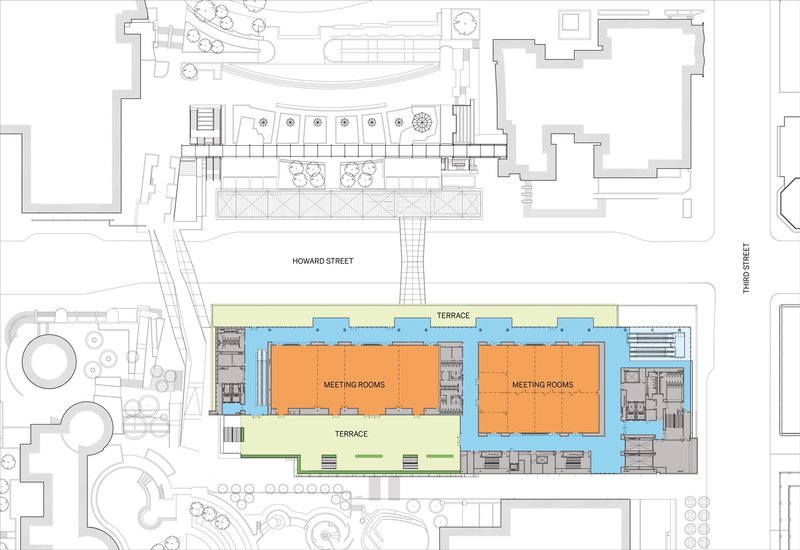
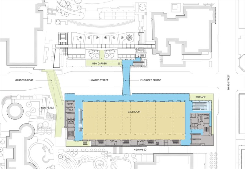
The design of the Moscone Center expansion focuses on maximizing natural light and promoting energy efficiency. The exterior features a clear horizontal form that floats above the ground, framed in white metal and infilled with transparent and fritted glazing. This design choice not only enhances the aesthetic appeal of the building but also reduces the need for artificial lighting, thus conserving energy.



Integration of Sustainable Materials and Technologies
The Moscone Center incorporates environmentally friendly materials and state-of-the-art technologies. It boasts the largest rooftop solar panel array in San Francisco, which supplies nearly 20 percent of the center's energy needs. The use of vertically folding operable walls and terrazzo flooring contributes to the building's overall energy efficiency and sustainability.


LEED Platinum Certification and Environmental Impact
Achieving High Standards in Sustainability
The Moscone Center is distinguished as the only convention space in the nation to achieve LEED Platinum certification, the highest rating available from the Leadership in Energy and Environmental Design (LEED) building certification program. This certification underscores the center's commitment to environmental stewardship and sustainable building practices.


Sustainable Water Management Systems
A key feature of the Moscone Center’s sustainability initiative is its advanced water management system. The center employs an aggressive groundwater and grey water system, reducing its overall water usage. This system not only meets the center's needs but also contributes to the irrigation of nearby Yerba Buena Gardens and supports the city’s street cleaning fleet.

The Role of Sustainable Design in Enhancing Community and Visitor Experience
Transparency and Community Engagement
The ground level of the Moscone Center has been redesigned to engage more openly with the community. By enhancing sidewalk transparency and accessibility, the center fosters a more inclusive environment for visitors and residents alike. Inside, the expansive and light-filled atrium provides a welcoming space for various events, further emphasizing the center's role in community building.


Views and Aesthetics
The design also focuses on creating visual connections with the surrounding cityscape. The new terraces and the luminous sculptural roof offer panoramic views of the San Francisco skyline, integrating the building more fully with the city's cultural and visual context.
The Moscone Center’s expansion is a prime example of how sustainable convention center design can achieve environmental goals while also enhancing urban spaces and community engagement. As cities continue to grow and seek sustainable solutions, the principles demonstrated by the Moscone Center provide valuable insights into the future of architectural design in urban environments.


All the photographs are work of Matthew Millman, Tim Griffith, Cesar Rubio
Popular Articles
Popular articles from the community
A Contemporary Take on Iranian Residential Architecture
A modern interior design in Mashhad that reinterprets brick, light, and spatial flow to create a warm, contemporary residential architecture.
Treehouse Apartment: A Warm Timber Interior Blending Craft, Play, and Contemporary Living
Warm timber apartment with integrated treehouse, combining natural materials, craftsmanship, and playful design to create a flexible, family-oriented living environment.
On the Brooks House by Monsoon Collective – A Contemporary Kerala Home Rooted in Tradition
Kerala home blending tradition and modernity with water-inspired design, brick architecture, courtyard planning, and sustainable rainwater harvesting strategies.
Inverted Architecture Installation by Studio Link-Arc: Exploring the Intersection of Architecture and Living Organisms
Inverted Architecture Installation by Studio Link-Arc blends mycelium, sustainability, inverted design, ecological cycles, and urban adaptive architecture in Shenzhen.
Similar Reads
You might also enjoy these articles
Architectural Competition: Create a Luxury Waterfront Community in the UAE!
Mira Developments announces an open competition for the pre-concept design of Mira Coral Bay in Ras Al Khaimah, UAE
Parametric Design: What Can You Learn from the 1st Workshop of Beegraphy?
Discover the Fundamentals and Advanced Techniques of Parametric Design
Feast of flight factory
A new ecological order with sustainable food resources-insects
Beyond Blueprints : How Architecture Presentation Boards Define The Design Narratives?
Unveiling the Art and Strategy Behind Architectural Storytelling
Explore Architecture Competitions
Discover active competitions in this discipline
The International Standard for Design Portfolios
The Global Benchmark for Architecture Dissertation Awards
The Global Benchmark for Graduation Excellence
Challenge to design locus for the upliftment of human rights
Comments (0)
Please login or sign up to add comments
No comments yet. Be the first to comment!