Sustainable Sports Facility Design: The Fieldhouse Sports Hall by MoDusArchitects
The article discusses the sustainable design and community integration of the Fieldhouse Sports Hall in Laghetti, Italy, by MoDusArchitects.
In the heart of Laghetti, Italy, lies a testament to the fusion of modern architecture and sustainability: The Fieldhouse Sports Hall, designed by MoDusArchitects. This innovative project not only serves as a community hub for sports and recreation but also stands as a beacon of sustainable sports facility design.


The Concept Behind Fieldhouse Sports Hall
Embracing the Environment
The Fieldhouse Sports Hall is strategically nestled between natural and urban elements, demonstrating a harmonious balance between architecture and the environment. This sustainable sports facility design takes full advantage of its picturesque setting by the Adige river and at the foothills of Mount Corno, blending seamlessly with the South Tyrolean landscape.


A New Material Milestone
Constructed with the community in mind, the Fieldhouse acts as a versatile connector within the town's fabric. The design repurposes the existing space while enhancing the building's energy efficiency, showcasing MoDusArchitects' commitment to sustainability.




Architectural Features and Sustainable Practices
Innovative Use of Materials
The structure's low-lying form and use of reinforced-exposed concrete cast in situ reflect the modern approach to sustainable sports facility design. The concrete's thermal mass helps maintain interior temperature, reducing energy consumption.


Maximizing Natural Light and Scenery
Large glazed apertures and trapezoidal pillars define the building's aesthetic, allowing natural light to flood the interior spaces. This design choice not only reduces the need for artificial lighting but also connects occupants with the surrounding landscape.


Energy Efficiency and Renewable Resources
At the heart of the Fieldhouse's sustainable design is its energy strategy. Equipped with 52 photovoltaic modules, the facility covers 50% of its energy needs with renewable sources, earning it the CasaClima A certification.

Community and Functionality
A Hub for Sports and More
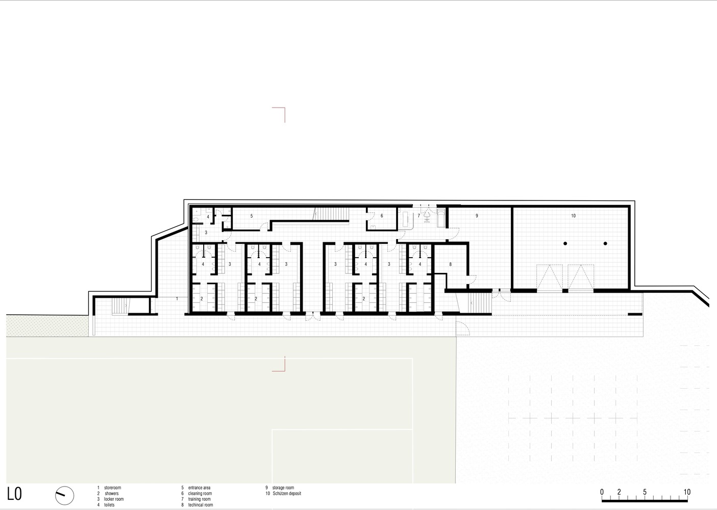
Beyond its architectural significance, the Fieldhouse serves as a community center, providing spaces for sports, meetings, and social events. The ground floor accommodates modern changing rooms and facilities, while the upper levels offer communal spaces, such as a cafeteria and large terrace.

Integrating Local Culture
The Fieldhouse also respects and integrates local traditions by housing the Tiroler Schützen, a division rooted in South Tyrolean culture. This inclusion further cements the facility's role within the community.

Setting a New Standard
The Fieldhouse Sports Hall by MoDusArchitects is more than just a building; it's a landmark in sustainable sports facility design. By blending innovative architecture with environmental consciousness, the project sets a new standard for future developments. This facility not only supports the physical health of its users but also the health of the planet.



All photographs are work of Gustav Willeit
Popular Articles
Popular articles from the community
An Miên Lumière Cafe by xưởng xép, Ho Chi Minh City, Vietnam
An industrial-inspired café where layered steel and warm light create a dynamic, immersive environment shaped by reflection, depth, and perception.
Louis Malle Cinema: A Limestone Cultural Landmark Revitalizing Community Life in Prayssac
Limestone cinema extension with public forecourt, blending heritage and modern design to create flexible cultural spaces and strengthen community interaction.
Atelier Macri Concept Store Interior Design by CASE-REAL
Atelier Macri store features a "ko" counter, walnut wood details, cork displays, blending retail, gallery, and seamless customer experiences.
On the Brooks House by Monsoon Collective – A Contemporary Kerala Home Rooted in Tradition
Kerala home blending tradition and modernity with water-inspired design, brick architecture, courtyard planning, and sustainable rainwater harvesting strategies.
Similar Reads
You might also enjoy these articles
Architectural Competition: Create a Luxury Waterfront Community in the UAE!
Mira Developments announces an open competition for the pre-concept design of Mira Coral Bay in Ras Al Khaimah, UAE
Parametric Design: What Can You Learn from the 1st Workshop of Beegraphy?
Discover the Fundamentals and Advanced Techniques of Parametric Design
Feast of flight factory
A new ecological order with sustainable food resources-insects
Beyond Blueprints : How Architecture Presentation Boards Define The Design Narratives?
Unveiling the Art and Strategy Behind Architectural Storytelling
Explore Architecture Competitions
Discover active competitions in this discipline
The International Standard for Design Portfolios
The Global Benchmark for Architecture Dissertation Awards
The Global Benchmark for Graduation Excellence
Challenge to design a barrier free sports center
Comments (0)
Please login or sign up to add comments
No comments yet. Be the first to comment!