Transforming Spaces: Inside the Showan Luxury Apartment Renovation
Exploring the Showan Apartment renovation in Tehran by Pragmatica Studio, highlighting luxury, design innovation, and modern living space transformation.
The Showan Apartment, situated in the vibrant heart of Tehran, Iran, presents a compelling case study in luxury apartment renovation. Executed by the distinguished Pragmatica Architectural Design Studio, this project exemplifies how a dated space can be reimagined into a modern sanctuary. In this article, we will delve into the transformative journey of the Showan Apartment, showcasing the integration of design, functionality, and luxury in contemporary living spaces.


The Genesis of a Modern Habitat
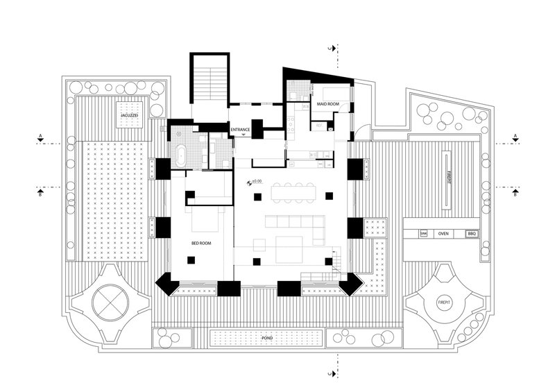
In 2020, Pragmatica Architectural Design Studio undertook the renovation of the Showan Apartment, a 200 square meter penthouse located on the sixth floor of a classical building. Characterized by a square-shaped plan and an expansive terrace, the apartment's original layout lacked divisions, presenting a fluid canvas for innovation.


Reimagining Space: The Architectural Strategy
The architects approached the renovation with a vision to create a duality within the living space. They introduced an imaginary datum line, defining the standard height for residential spaces. Below this line, the apartment was designed to meet functional needs while exuding a bright and minimalist aesthetic. Above the line, the space transformed into a floating, whimsical area, marked by its flexible plan and raw textures.


Design Elements that Define Luxury
Integrative Living Spaces
The ground floor hosts the living and dining areas, master bedroom, kitchen, and maid’s room, seamlessly connected to the outdoor terrace. This space is bifurcated into public and private zones, featuring amenities like a firepit and jacuzzi, enhancing the luxury living experience.


The Mezzanine: A Realm of Flexibility
Above, the mezzanine floor harbors spaces like the game room and library, offering adaptability and a personalized touch to the dwelling. These areas serve as a testament to modern living where spaces are not just built but curated according to the occupants' evolving needs.



Contrasting Textures and Light
The design juxtaposes bright, transparent areas with darker, rougher zones, creating a rich sensory experience. Elements such as the double-height glass bedroom and the towering fireplace not only serve functional purposes but also dissolve the traditional boundaries between different living areas.

A Blueprint for Modern Living
The Showan Apartment renovation by Pragmatica Architectural Design Studio stands as a beacon of modern architecture and design. By redefining the norms of residential spaces, the project illustrates the potential of architecture to enhance the quality of living while addressing the dynamic needs of its residents. In the realm of luxury apartment renovations, the Showan Apartment emerges as a hallmark of innovation, functionality, and aesthetic excellence, paving the way for future endeavors in the architectural landscape.


All photographs are work of Majid Jahangiri
Popular Articles
Popular articles from the community
Louis Malle Cinema: A Limestone Cultural Landmark Revitalizing Community Life in Prayssac
Limestone cinema extension with public forecourt, blending heritage and modern design to create flexible cultural spaces and strengthen community interaction.
Flamboyant House by Juliana Camargo + Prumo Projetos
Modern Brazilian house integrating existing tree, pool, and volumes with glass, wood, and transitional spaces blending interior, exterior, and landscape seamlessly.
Treehouse Apartment: A Warm Timber Interior Blending Craft, Play, and Contemporary Living
Warm timber apartment with integrated treehouse, combining natural materials, craftsmanship, and playful design to create a flexible, family-oriented living environment.
A Contemporary Take on Iranian Residential Architecture
A modern interior design in Mashhad that reinterprets brick, light, and spatial flow to create a warm, contemporary residential architecture.
Similar Reads
You might also enjoy these articles
Architectural Competition: Create a Luxury Waterfront Community in the UAE!
Mira Developments announces an open competition for the pre-concept design of Mira Coral Bay in Ras Al Khaimah, UAE
Parametric Design: What Can You Learn from the 1st Workshop of Beegraphy?
Discover the Fundamentals and Advanced Techniques of Parametric Design
Feast of flight factory
A new ecological order with sustainable food resources-insects
Beyond Blueprints : How Architecture Presentation Boards Define The Design Narratives?
Unveiling the Art and Strategy Behind Architectural Storytelling
Explore Architecture Competitions
Discover active competitions in this discipline
The International Standard for Design Portfolios
The Global Benchmark for Architecture Dissertation Awards
The Global Benchmark for Graduation Excellence
Challenge to design mud housing for contemporary communities
Comments (0)
Please login or sign up to add comments
No comments yet. Be the first to comment!