Vertical Home Design: The ARQ10 House by IDIN Architects
Explore ARQ10 House by IDIN Architects: a vertical home design that masterfully integrates green spaces in urban living in Thailand.
In the heart of Thailand, the ARQ10 House stands as a testament to innovative vertical home design. Developed by IDIN Architects in 2022, this 615 square meter residence combines luxury and functionality to cater to the modern urban family.


The Challenge of Urban Spaces
Urban living often comes with the challenge of limited space. IDIN Architects responded with a design that expands upwards, integrating natural light and green spaces across multiple levels, a vital feature of vertical home design.


Architectural Strategy and Layout
The Ground Floor: A Semi-Public Space
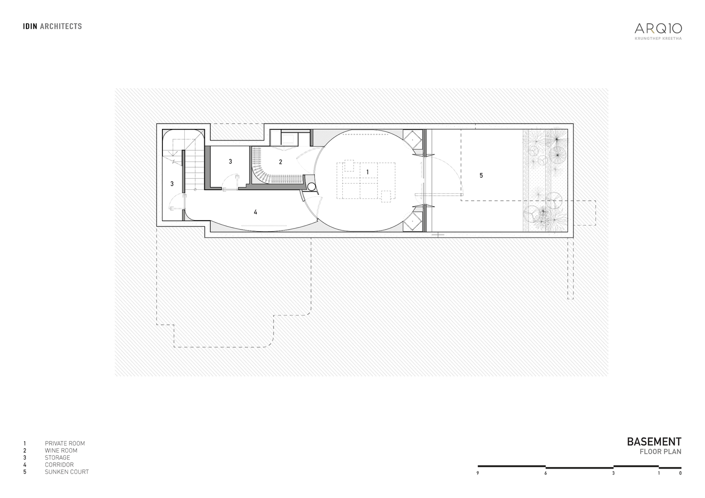
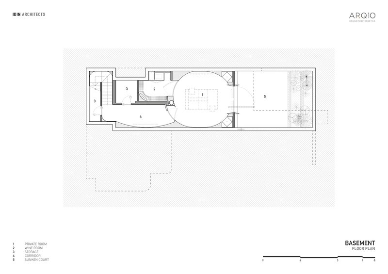
The layout begins semi-publicly on the ground floor, designed to welcome guests with ease, flowing into a versatile dining and lounge area. This level also features a unique basement - exclusive to the L type ARQ10 House - which serves as a multi-purpose man cave, opening to a sunken court that leads to a garden, ensuring privacy and openness.



The Integration of Nature and Light
As part of the vertical home design, pocket green courts are strategically placed between rooms, enhancing cross-ventilation and bringing abundant natural light. This design is not only aesthetically pleasing but also promotes a healthier urban living environment by reducing carbon dioxide levels.



Living Areas: Private and Semi-Private Zones
Above the welcoming ground floor, the first level features a mezzanine bedroom surrounded by greenery. The primary living spaces are located on the second floor, an open plan area that includes a living room, dining space, and a strategically placed swimming pool. This floor emphasizes the concept of vertical living by using the pool not just for recreation but also as a cooling element, visible from the living area and adding to the home's aesthetic and functional design.


The Third Floor and Rooftop Garden
The top levels house the private quarters with two master bedrooms on the third floor, each facing the lush inner courtyard. The design culminates in a rooftop garden on the next level, providing leisure space and reducing heat transfer, a crucial aspect of vertical home design in tropical climates.

A Model for Future Urban Homes
ARQ10 House by IDIN Architects exemplifies how vertical home design can effectively utilize limited urban space. By integrating functional living spaces with greenery and sustainable practices, it offers a blueprint for future homes in city settings.



All photographs are work of DOF Sky | Ground
Popular Articles
Popular articles from the community
BAST Slots a Four-Story Glass House into a Narrow Gap Between Toulouse Townhouses
In the dense Bonnefoy district, a stepped infill building merges home and office while preserving a majestic hackberry tree.
Rojkind Arquitectos and Think Parametric Build a Glueless Pavilion from 67 Interlocking Panels
A serpentine fiber-cement installation in Chapultepec Park celebrates a decade of architectural media in Mexico City.
Fausto Terán and Toro Fuse Japanese Craft with Mexican Tradition in a Lakeside Retreat
Nakamura House pairs Shou-Sugi-Ban charred pine with handmade clay tile at the foot of Atlangatepec Lagoon in Mexico.
Takeshi Hosaka Architects Suspends a Concrete Cross Above a Yokohama Cemetery
A 28-square-meter burial renovation in Yokohama lifts the symbol of resurrection into the sky so mourners see it against heaven.
Similar Reads
You might also enjoy these articles
Maya Harvest: A Cacao Resort Village Rooted in Mayan Tradition and Local Craft
Situated within a Tabasco cacao plantation, this shortlisted resort proposal merges vernacular materials with hands-on cultural immersion.
Harmonia: A River-Shaped Community That Grows Over Decades in Boa Vista
Curved pathways and modular grid structures along the Branco River create a phased settlement designed to evolve from 2030 to 2050.
The Architecture of Bathing: A Mughal Hammam Reimagined Across the Yamuna
Charlotte May's honorable mention entry for The Black Taj reinterprets Agra's bathing rituals through red sandstone, water, and framed views of the Taj Mah
Om-1: A Wall-Hung System That Moves Your Workspace Off the Desk
Modular plywood boards, magnetic pegs, and utility elements migrate clutter from the horizontal surface to the vertical plane.
Explore Housing Competitions
Discover active competitions in this discipline
The International Standard for Design Portfolios
The Global Benchmark for Architecture Dissertation Awards
The Global Benchmark for Graduation Excellence
Challenge to reimagine the Iron Throne
Comments (0)
Please login or sign up to add comments
No comments yet. Be the first to comment!